Maison située au centre du village face à la boulangerie, accès direct A1 vers Roissy CDG en moins de 30 mn.
Elle offre au rez-de-chaussée :
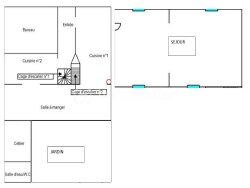
Entrée,
Séjour,
Salon avec cheminée,
Cuisine,
Arrière cuisine,
Chambre,
Office avec toilette sèche et douche,
Véranda.
A l'étage :
3 chambres,
Salle de bain
WC.
Grenier aménageable.
Chauffage central fioul. Fibre. Bien orientée au soleil.
A noter : Le séjour et le salon sont situés au rez-de-chaussée de la maison voisine (à gauche sur la photo de la façade, Cf. annonce référence 301390) : possibilité d'acheter les 2 lots pour en faire une très grande maison ou un investissement locatif.
Rafraichissement à prévoir.
Bourg avec boulangerie et bar tabac presse, restaurants, tous les autres commerces à 5 minutes.
Zone aéroportuaire de Roissy Charles de Gaulle CDG à 25 minutes par l'autoroute A1.
Cette annonce référence 301388 vous est présentée par votre agent commercial BSK Immobilier THIERRY MENNECART (EI) immatriculé au RSAC de COMPIEGNE (60200) sous le numéro 34779622900065.
Prix du bien : 259 000,00 €
Les honoraires d'agence sont à la charge du vendeur.
A propos des performances énergétiques :
Date de réalisation du diagnostic énergétique : 25/07/2025
Score DPE : 206 kWhEP/m²/an
Score GES : 53 kgepCO2/m²/an
Montant estimé des dépenses annuelles d'énergie pour un usage standard : entre 3313.00 € et 4483.00 € par an. Prix moyens des énergies indexés sur l'année 2023 (abonnements compris).
Les informations sur les risques auxquels ce bien est exposé sont disponibles sur le site Géorisques : www.georisques.gouv.fr
134 m²
1 933 €
6
4
1960
Sud
Oui
Consommations énergétiques
Logement économe
206
Logement énergivore (kWhEP/m2/an)
Émissions de gaz à effet de serre
Faible émission de GES
53
Forte émission de GES(kgeqCO2/m2/an)
Contact MENNECART THIERRY
Contacter gratuitement à l'aide du formulaire ci-dessous.