Maison 75 m2 à 500m du centre bourg et 7mn des plages
Angles 85750
0
Honoraires à la charge de l'acquéreur (Prix hors honoraires : 219000 euros).
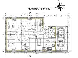
Dans un petit lotissement tranquille à 500 m des commerces du centre bourg et à 7mn des plages de la Tranche-sur-Mer ou de Longeville-sur-mer, cette maison est prête à construire. Située dans un lotissement terminé et propre, cette maison avec trois chambres dont une de 14m2 avec dressing est idéale pour habiter du neuf avec un budget totalement maitrisé. Un belle pièce de vie de 25m2 orientée plein sud et une terrasse de 15m2 permettent de profiter des beaux jours sur un terrain avec très peu d'entretien.
Contactez rapidement l'agence pour profiter de cette opportunité rare à ce prix pour du neuf avec trois chambres et un garage.
DPE en cours. Les informations sur les risques auxquels ce bien est exposé sont disponibles sur le site Géorisques : georisques.gouv.fr.
Votre conseiller MAISON BLANCHE LES SABLES D'OLONNE : Michel Betou Agent commercial (Entreprise individuelle) RSAC 2019AC00181