Honoraires à la charge de l'acquéreur (Prix hors honoraires : 170000 euros).
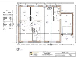
A VENDRE Maison neuve 90m² habitable avec terrain d'environ 450m². A 5 min de La Rochefoucauld dans un cadre arboré et résidentiel. Ecole primaire à 200m. Ramassage de bus pour le collège et le lycée à 150m. Maison de plain pieds neuve livré clé en main hors peinture. Séjour avec cuisine ouverte d'environ 37m². 3 Chambres. Salle d'eau équipée, avec douche à l'italienne, meuble 2 vasques et d'un sèche serviette. Un WC indépendant et un Cellier. Garage attenant d'environ 16m². Chauffage avec pompe à chaleur air/air avec splits, chauffe-eau Thermodynamique. Cette maison consomme très peu d'énergie, une économie à long terme! Réseaux : Eau, Electricité, Fibre, Tout à l'égout. Exonération de taxe foncière pendant 2 ans. Vous bénéficiez aussi des frais de notaire réduit à 3%. Assurance décennale et dommage ouvrage comprise. Photos non contractuelles.
Non soumis au DPE. Les informations sur les risques auxquels ce bien est exposé sont disponibles sur le site Géorisques : georisques.gouv.fr.
90 m²
1 889 €
37 m²
550 m²
4
3
1
1
31/03/2026
2025
Est
Ouest
2
1
1
Oui
Oui
Oui
Contact Maisons Charentaises
Contacter gratuitement à l'aide du formulaire ci-dessous.