Honoraires à la charge de l'acquéreur (Prix hors honoraires : 260000 euros).
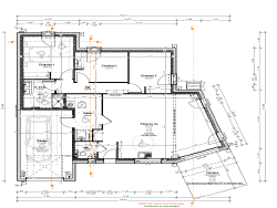
Votre agent commercial NOOVIMO Brigitte AUGUIN BERTEAUD 0687274944 bauguin@noovimo.fr vous propose sur ST HILAIRE de Mortagne maison de plain pied avoisinant les 97 m2 répondant aux normes PMR et bénéficiant de la RE 2020. Pavillon de 2025 offrant salon-séjour, cuisine aménagée, cellier, 3 chambres, et une salle d'eau indépendante, garage. Le bien est édifié sur une parcelle de 429 m2 exposée sud. La maison bénéficie d'un chauffage au sol assuré par une pompe à chaleur. Ce bien profite des frais de notaires réduits. Les informations sur les risques auxquels ce bien est exposé sont disponibles sur le site géorisque http://www.georisques.gouv.fr Honoraires: 3.4% ttc de 260 000EUR ( prix de vente honoraires exclus) soit 269 000EUR honoraires inclus. Honoraires charges acquéreurs, nos honoraires sont consultables sur www.noovimo.fr Votre agent commercial NOOVIMO inscrit au RSAC de La Roche S/Yon sous le No482580764 - Annonce rédigée et publiée par un Agent Mandataire -
97 m²
2 773 €
42 m²
429 m²
4
3
1
1
3.46 %
2025
1
Consommations énergétiques
Logement économe
020
Logement énergivore (kWhEP/m2/an)
Émissions de gaz à effet de serre
Faible émission de GES
2
Forte émission de GES(kgeqCO2/m2/an)
Contact AUGUIN
Contacter gratuitement à l'aide du formulaire ci-dessous.