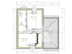
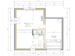
Offrez vous le confort d'une maison pour le prix d'un appartement ! Calme, nature et accessibilité, pour votre projet de vie à Chalamont, une adresse d'exception dans la Dombes. Optez pour la sérénité à 40km de LYON, 10km de Meximieux, un cadre de vie Convivial idéal pour un premier achat. Votre Confortable maison de 71,60m² habitables, plus garage, est constituée : En rez de chaussé d'un espace de vie traversant, et Lumineux de 36m², avec cuisine ouverte, baie vitrée et porte fenêtre ouvrant sur le jardinet; d'un WC . A l'étage l'espace nuit : 2 chambres, salle de bains avec sèche serviettes, WC. Autre avantage le garage de 18.48 m² avec accès direct cuisine. Une réalisation personnalisable, qui vous offre des prestations de qualité, en RE 2020: Enduit gratté, tuiles terre cuite, film sous toiture; menuiseries ( RAL 7035) avec volets roulants électriques; carrelage 60X60, chauffage individuel par pompe à chaleur (AIR/AIR); chauffe eaux thermodynamique. Porte de garage sectionnelle motorisée. Finitions, agencements intérieur et extérieurs à prévoir; cuisine équipée , et meuble vasque, non fournis à la charge des clients. VRD à la charge client, valeur 11050 euros si prise en charge par le constructeur. Situé dans un Village fleuri et agréable, au riche patrimoine architectural, qui séduit par sa tranquillité et son atmosphère naturelle apaisante, tout en vous offrant une structure locale qualitative avec tous commerces, cabinet médical, services, équipements sportifs, école primaire très proche du centre, collèges et lycées accessibles en moins de 15 min en voiture ; gare à 10mn ; aéroport de Lyon-Saint-Exupéry à moins de 40 min . Prix de vente 231 900 euros. Honoraires à la charge du vendeur. Référence 2278-13F. N'hésitez plus car votre budget pour un appartement vous permet aussi de vivre en maison individuelle, dans un cadre de vie préservé, et de personnaliser votre chez vous, à votre rythme et selon vos envies. Alors contactez moi vite ! Vidéos visibles sur notre site et sur le compte INSTAGRAM: fabienne_sixiemeavenue_69 Pour plus de renseignements contactez: Fabienne Creola au 06.11.95.62.68 . Agent commercial en EI, au RSAC 340180800 Lyon pour Sixième Avenue agence Miribel-Fontaines. Fabienne CREOLA (EI) Agent Commercial - Numéro RSAC : 340128800 - lyon.