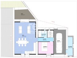
Maison à finir de renover 116 m² Habitables sur un terrain de 229m² à 10mn de la Chapelle Basse Mer et Mauves sur Loire, sur la commune de la Varenne, Située dans un charmant hameau, cette maison en pierre de 116 m² de la fin du 20eme offre un fort potentiel pour un faible investissement de travaux à terminer Ses points forts : Plan d'architecte fourni pour une projection facilitée Possibilité d'aménagement en 4 chambres, 2 salles de bains et 2 WC Électricité, plomberie et huisseries neuves Charme authentique : pierres apparentes, poutres d'époque Le tout dans un environnement calme et rural, tout en restant proche des commodités Cette maison est idéale pour un projet de résidence principale ou secondaire, à personnaliser selon vos goûts. À visiter sans tarder ! SAS REVO IMMO - MASSIDDA Vincent EI - O786 964 883 - Plus d'informations sur www.revo.immo (réf. 4901050910). Agent commercial RSAC ANGERS 522 862 119 - Honoraires : 3,35 % TTC à la charge de l'acquéreur Prix hors honoraires d'agence : 179 000 - Les informations sur les risques auxquels ce bien est exposé sont disponibles sur le site Géorisques : https://www.georisques.gouv.fr/.
116 m²
1 595 €
35 m²
229 m²
6
4
2
2
Consommations énergétiques
Logement économe
301
Logement énergivore (kWhEP/m2/an)
Émissions de gaz à effet de serre
Faible émission de GES
10
Forte émission de GES(kgeqCO2/m2/an)
Contact SAS REVO IMMO
Contacter gratuitement à l'aide du formulaire ci-dessous.