Honoraires à la charge de l'acquéreur et du vendeur (Prix hors honoraires : 0 euros).
Les charges de location sont prévisionnelles mensuelles avec régularisation annuelle.
La part des honoraires pour la réalisation de létat des lieux de ce bien est de 99.00 euros.
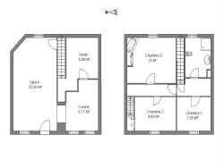
Villa de type 4 pièces de 87,14 M² comprenant: séjour, cuisine américaine équipée (paque de cuisson, hotte, lave vaisselle, four), 3 chambres, salle de bains, wc, cour privative de 150 m² env , chauffage gaz de ville. Loyer 900.00 Honoraires d'agence 550.00 TTC Dépot de garantie 900,00. Disponible de suite. Rénovation des peintures intérieur effectuées en 2025.
Honoraires de 550 TTC à la charge du locataire comprenant 99 TTC pour l'état des lieux. Loyer de base 900.00 /mois. Dépôt de garantie 900 . Classe énergie E, Classe climat E Montant estimé des dépenses annuelles d'énergie pour un usage standard : entre 1970.00 et 2740.00 sur les années 2021, 2022 et 2023 (abonnements compris). Les informations sur les risques auxquels ce bien est exposé sont disponibles sur le site Géorisques : georisques.gouv.fr.
Votre conseiller Cartimo-Lyon : Dirigeant. - Frédéric GILBERT Carte T 69012018000025925 RCP Allianz
87.14 m²
27.30 m²
150 m²
4
3
1
1
550 %
08/10/2025
1800
4
Consommations énergétiques
Logement économe
247
Logement énergivore (kWhEP/m2/an)
Émissions de gaz à effet de serre
Faible émission de GES
50
Forte émission de GES(kgeqCO2/m2/an)
Contact Cartimo-Lyon
Contacter gratuitement à l'aide du formulaire ci-dessous.