Maison à rénover - Métro Robespierre - Rue des Hayeps - Montreuil
Montreuil 93100
0
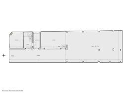
Hosman vous propose à la vente cette maison avec terrain et hangar d'une surface totale de 260 m2 au sol, situé Rue des Hayeps à Montreuil.
Avec le PLU de juin 2025, pas de possibilité de construction d'un immeuble ou de faire de l'investissement locatif.
Projet pour rénovation sur une résidence principale.
Il se constitue :
- D'une maison sur deux niveaux à rénover
- D'un hangar couvert
- D'un passage couvert
Un sous-sol est également présent.
Le bien se situe à 9 min à pied de la ligne 9 du Métro Robespierre.
Le RER A se situe à 15 min à pied.
L'appartement se trouve au c?ur d'un quartier calme, familial et proche de toutes commodités.
Le système de chauffage est individuel et électrique.
La taxe foncière est de 2 000 €.
Si vous êtes un professionnel de l'immobilier (agent, mandataire ou chasseur immobilier) sachez que toutes les annonces Hosman sont ouvertes à la collaboration. N'hésitez pas à nous contacter pour en discuter.
260 m²
2 846 €
260 m²
3
2
1
1
Séparée
Sud
Oui
Oui
Consommations énergétiques
Logement économe
377
Logement énergivore (kWhEP/m2/an)
Émissions de gaz à effet de serre
Faible émission de GES
12
Forte émission de GES(kgeqCO2/m2/an)
Contact Julie Jaubert
Contacter gratuitement à l'aide du formulaire ci-dessous.