Vous cherchez une maison sans mauvaises surprises ?
Bonne nouvelle : celle-ci n'en cache aucune... puisqu'il n'y a rien ! :)
Pas d'assainissement, pas de chauffage, pas de cuisine, pas de salle de bain, pas d'arrivée ni d'évacuation d'eau... Bref, une page blanche immobilière prête à accueillir vos idées les plus folles !
Les murs sont là, le toit aussi (elle est hors d'air) Mais tout le reste est à inventer -- du sol au plafond, en passant par la déco et même la plomberie !
C'est le genre de bien qui fait battre le coeur des vrais passionnés de rénovation Ici, pas besoin de casser, pas besoin de râler sur les anciens proprios... Vous partez de zéro, et tout sera à votre goût.
Alors, architectes dans l'âme, bricoleurs du dimanche ou artistes de la transformation, cette maison n'attend plus que votre imagination !
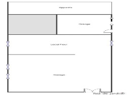
- Sur les hauteurs d'Eymet - Possibilité de créer 110m2 habitable sur un sous-sol de 90m, le tout sur un terrain non clos de 3240m2 avec grange - 86 000EUR Et souvenez-vous : chez Cyrano Immobilier, on vend même les maisons sans salle de bain... mais avec le sourire
Contact: Claire CORBIN immatriculée au RCS de Bergerac No 988 904 660 - claire.corbin.immo@gmail.com - 06 10 80 67 91
'Les informations sur les risques auxquels ce bien sont soumis sont disponibles sur www.georisques.gouv.fr'
1 m²
81 000 €
55 m²
3240 m²
4
2
1
1
Contact CORBIN Claire
Contacter gratuitement à l'aide du formulaire ci-dessous.