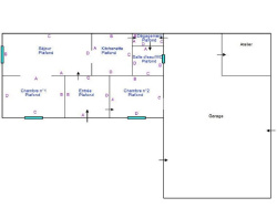
Venez découvrir cette charmante maison à rénover, et oui il va falloir se remonter un peu les manches, mais en entrant vous trouverez un sol d'époque, arches à chaque ouverture, vous pouvez en faire un jolie petit cocon entiérement de plain pied, avec possibilité d'agrandissement elle se compose actuellement de 2 chambres, salon, cuisine, salle d'eau, un atelier et un garage de plus de 50 m2 transformable Contactez moi pour jetter un petit coup d'oeil Idéale premier achat ou investissement - Annonce rédigée et publiée par un Agent Mandataire -
42 m²
2 310 €
3
2
1
1
1
Contact I@D France - Céline GARON
Contacter gratuitement à l'aide du formulaire ci-dessous.