Maison à rénover de 70m2 sur parcelle d'environ 100m2
Bègles 33130
0
Honoraires à la charge de l'acquéreur (Prix hors honoraires : 180000 euros).
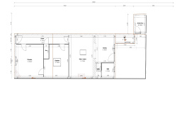
Pour une réactivité optimale, n'hésitez pas à me contacter directement par téléphone. Vidéo de présentation à disposition. Située dans le secteur de l'hôpital Robert Piqué, venez découvrir cette échoppe de 70m2 à rénover et réaménager entièrement, vendue viabilisée mais non raccordée. Elle se compose de plain-pied d'un salon/séjour avec ancienne cheminée, d'un coin cuisine, de deux chambres, d'un WC indépendant et d'une salle de bain. Une cave complète cet ensemble qui se positionne sur une parcelle de 100m2, vous y trouverez un jardinet de 40m2 à aménager côté cuisine. Les plus : les prestations anciennes conservées, le jardinet à l'arrière et le potentiel des lieux ! Informations complémentaires : couverture refaite en 2017 et 2019, travaux importants à prévoir (électricité, plomberie, plâtrerie, isolation, peinture, revêtement de sol, cuisine, sanitaire, salle de bain, reprise des réseaux, menuiserie, etc.), tout-à-l'égout disponible, fibre optique disponible, menuiserie bois et PVC, etc. Dossier complet sur demande, ce bien est issu d'une division de bâti existant. Taxe foncière : env. 1400EUR. Prix de vente : 189 900 EUR. 'Les honoraires d'agence seront intégralement à la charge de l'acquéreur'. Référence : 97156-2. Contacter : Kévin RENAUD - 06 73 95 53 63 - krenaud.immo@gmail.com - numéro ADC : 8401 2022 000 000 400 - Les informations sur les risques auxquels ce bien est exposé sont disponibles sur le site Géorisques : www.georisques.gouv.fr Cette annonce vous est proposée par Kévin RENAUD - EIRL - NoRSAC: 839 040 060, Enregistré à Greffe du tribunal de commerce de LIBOURNE - Annonce rédigée et publiée par un Agent Mandataire -
70 m²
2 713 €
17 m²
100 m²
3
2
1
1
5.50 %
1900
Est
Ouest
Contact Kévin RENAUD
Contacter gratuitement à l'aide du formulaire ci-dessous.