- IDÉAL INVESTISSEUR -
Située sur l'axe Avallon / Saulieu, accès rapide à l'A6 ; Cette maison nécessite une rénovation complète, elle offre des volumes intéressants et plusieurs possibilités d'aménagement.
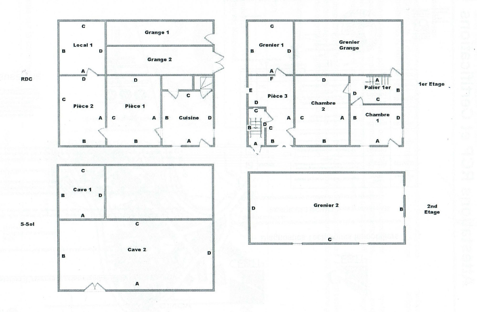
Vous découvrirez :
- Cuisine d'environ 13 m²
- Séjour d'environ 30 m²
Premier espace nuit :
- Deux chambres au premier étage
Au-dessus de l'une des chambres, un grenier aménagé pouvant servir de troisième chambre, bureau, dressing, salle de jeux?
Deuxième espace avec accès indépendant :
- Pièce palière d'environ 11 m² (buanderie, bureau, rangement?)
- Salle de bains d'environ 10 m²
Double vitrage / Installation chauffage Gaz et PAC / Assainissement individuel
Le tout sur un terrain de 377 m².
Cette annonce référence 310856 vous est présentée par votre agent commercial BSK Immobilier ILLONA POINSOTTE (EI) immatriculé au RSAC de AUXERRE (89000) sous le numéro 94379911400013.
Prix du bien : 25 000,00 €
Les honoraires d'agence sont à la charge du vendeur.
Les informations sur les risques auxquels ce bien est exposé sont disponibles sur le site Géorisques : www.georisques.gouv.fr
112 m²
223 €
377 m²
5
2
1
1
1900
Oui
Contact ILLONA POINSOTTE
Contacter gratuitement à l'aide du formulaire ci-dessous.