Honoraires à la charge de l'acquéreur (Prix hors honoraires : 239900 euros).
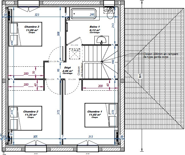
Ambérieu-en-bugey. 249 000. À 1 min du centre ville, Parlezmoidimmo vous propose cette maison en lotissement de 90m2. Proximité directe toutes commodités, écoles, gare (2 min), collèges, lycées, autoroute. Sur un terrain clos et arboré de 270 m². Au rez-de-chaussée : belle entrée donnant sur un salon séjour ouvert sur une grande cuisine aménagée et équipée de 38 m2, WC indépendant., accès garage avec mezzanine. À l'étage, 3 chambres entre 10 et 12 m2, une grande salle d'eau de plus de 6 m2, WC indépendant. Clim réversible Mentions légales: Les informations sur les risques auxquels les biens sont exposés sont disponibles sur le site Géorisques: www.georisques.gouv.fr, les honoraires sont à la charge du vendeur, notre barème est consultable sur notre site, les diagnostics ont été réalisés le 03/09/2025, DPE: Classé C, GES: Classé C, Montant estimé des dépenses annuelles d'énergie pour un usage standard entre 1 260 et 1 780, Prix moyens des énergies indexés (abonnement compris) à la date du 01/01/2021, le bien n'est pas soumis au régime de copropriété . Pour toutes informations complémentaires Parlez-Moi d'Immo Lyon vous propose de contacter Lancelot SEILLER votre conseiller immobilier Indépendant (R.S.A.C. de BOURG-EN-BRESSE N° 938599727) spécialisé sur le secteur de Ambérieu-en-bugey au 07 82 11 12 48
Honoraires inclus de 4.17% TTC à la charge de l'acquéreur. Prix hors honoraires 239 900 . Classe énergie C, Classe climat C Montant moyen estimé des dépenses annuelles d'énergie pour un usage standard, établi à partir des prix de l'énergie de l'année 2023 : entre 1260.00 et 1780.00 . Les informations sur les risques auxquels ce bien est exposé sont disponibles sur le site Géorisques : georisques.gouv.fr.