Projet Maison Neuve à Construire Chanay (01420) Vue Mont-Blanc
Vous rêvez d'une maison familiale spacieuse et moderne avec une vue exceptionnelle ? Ce projet est fait pour vous !
Située sur la charmante commune de Chanay (01420), ce projet maison neuve à construire avec notre partenaire CIMCO vous offre un cadre de vie paisible, au coeur de la nature, avec une vue imprenable sur le Mont-Blanc.
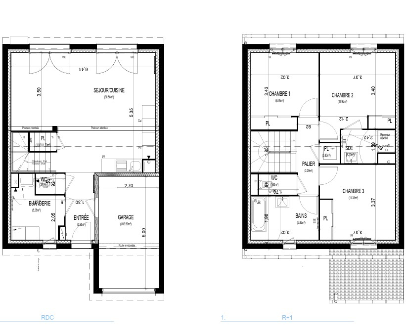
Descriptif du projet : Maison contemporaine de 4 chambres spacieuses 2 salles de bains modernes 2 WC séparés Belle pièce de vie de 53 m² avec cuisine ouverte sur séjour, lumineuse et conviviale, idéale pour recevoir Garage de 20 m² Terrain de 1 048 m², offrant un bel espace extérieur pour vos projets de jardin, piscine ou terrasse Prestations de qualité, conforme à la réglementation RE2020
Un cadre exceptionnel, à proximité des commodités, écoles, et axes routiers, tout en profitant d'un environnement calme avec une vue rare et dégagée sur les montagnes.
Contactez-nous dès maintenant pour plus d'informations ou pour étudier ensemble la personnalisation de votre futur chez-vous !
Honoraires à la charge du vendeur. Non soumis au DPE. Les informations sur les risques auxquels ce bien est exposé sont disponibles sur le site Géorisques : georisques.gouv.fr.