Maison à vendre de 75 m2 avec grange, secteur Tocane, Lisl
Lisle 24350
0
Honoraires à la charge du vendeur.
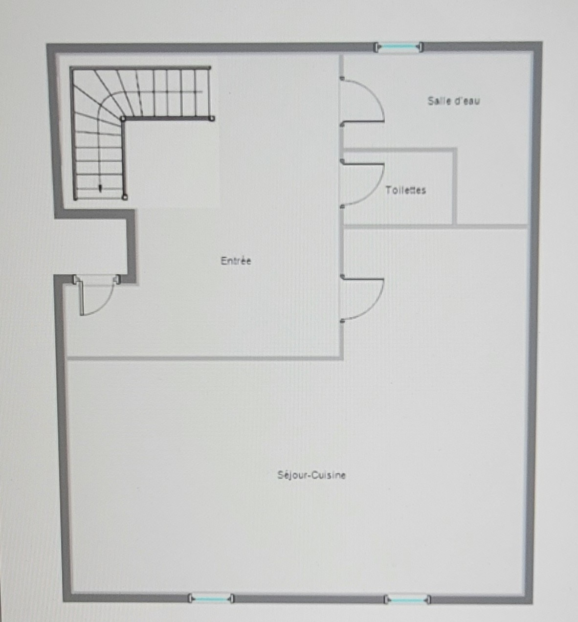
Découvrez cette charmante maison à vendre, située dans un bourg avec tous commerces à proximité à pied. Cette propriété de 75 m2 s'étend sur deux étages et comprend une cour de 50 m2 environ ainsi qu'un ancien fournil avec son four à pain, plus un deuxiéme étage . Au rez-de-chaussée, vous trouverez un salon, une cuisine ouverte semi équipée, une entrée et un toilette. Le premier étage dispose d'une chambre avec placard, un dégagement, tandis que le deuxième étage offre une deuxième chambre avec salle d'eau et WC, ainsi que des combles. Le système d'assainissement est tout-à-l'égout. Ne manquez pas cette opportunité unique ! Plus d'information dans notre catalogue en ligne delanchy immobilier 05 53 90 91 48 Cette annonce vous est proposée par Delanchy Eric E I - SAS - NoRSAC: 807941851, Enregistré à Greffe du tribunal de commerce de PERIGUEUX - Annonce rédigée et publiée par un Agent Mandataire -
75 m²
1 085 €
50 m²
4
2
1
2
1940
Consommations énergétiques
Logement économe
357
Logement énergivore (kWhEP/m2/an)
Émissions de gaz à effet de serre
Faible émission de GES
11
Forte émission de GES(kgeqCO2/m2/an)
Contact Immobilier Delanchy
Contacter gratuitement à l'aide du formulaire ci-dessous.