Honoraires à la charge de l'acquéreur (Prix hors honoraires : 365000 euros).
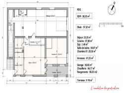
À découvrir sur la commune de Lansargues, maison à rénover en R+1 de 158 m² implantée sur une parcelle 447 m². Le rez de chaussé est constitué : D'une entrée, d'un séjour de 23m², d'une grande chambre de 20,30m², d'une cuisine, d'une salle de bain et d'une terrasse de 8,30m² L'étage quand à lui se compose : D'une entrée, d'un séjour spacieux de 29m², de trois chambres (10,70m², 14.39m² et 15,62m²), d'une cuisine, salle de bain et wc indépendant et de deux terrasses de 24,85m² et de 8,20m².
Grâce à son accès extérieur l'étage peut être complétement indépendant !
Un grand garage de 50,85m², et deux places de parking à l'extérieur viennent compléter ce bien.
Honoraires inclus de 5% TTC à la charge de l'acquéreur. Prix hors honoraires 365 000 . Classe énergie D, Classe climat E. Montant moyen estimé des dépenses annuelles d'énergie pour un usage standard, établi à partir des prix de l'énergie de l'année 2020 : 4000.00 . Date de réalisation du DPE : 12-01-2021. Les informations sur les risques auxquels ce bien est exposé sont disponibles sur le site Géorisques : georisques.gouv.fr.