Honoraires à la charge de l'acquéreur (Prix hors honoraires : 430000 euros).
*** Clef en main, beaux volumes ***
WEELODGE immobilier à le plaisir de vous présenter cette magnifique maison DE VILLE de 200m2 habitable sur un terrain au calme de 868m2 ensoleillé.
Un appartement de type F2 de 35m2 + un appartement de type F3 de 65m2 fait partit des 300m2 habitable. Il est possible de relier l'ensemble pour faire une très grande maison ou autre projet.
Idéalement situé au coeur du centre ville de Mesnil sur Iton. A proximité on y trouve les écoles, un supermarché, les espaces verts et L'étang de Damville.
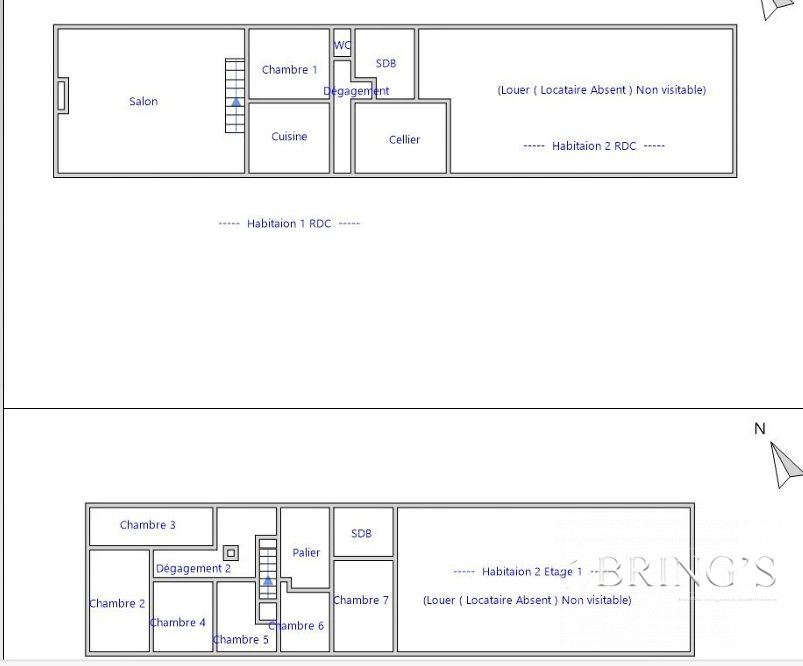
Cette charmante maison familiale se compose :
Au RDC :
- D'une entrée de bonne taille avec placard encastré, - Un premier séjour de 25m2 - Un second séjour de 17m2 - Une cuisine indépendante aménagée ouverte sur une grande véranda de 38m2. - Une buanderie / cellier - Accès au F2 de 35m2 ( Pièce de vie + chambre + petite kitchenette + salle d'eau + WC séparé ) Photo de 20 à 22 - Accès à une grande cave.
A l'étage :
- Une pièce palière de 13m2 qui peut faire office de bureau ou autre, - 2 chambres dont une en suite parentale avec dressing de 16m2 ! - 1 Bureau ou chambre d'enfant, - Une salle de bain + douche, - Un WC séparé. - Accès à l'appartement F3 de 65m2 ( Une entrée + Un séjour + 2 chambres + une cuisine indépendante + salle d'eau + WC séparé ) Photo de 23 à 29 - Accès au grenier de 65m2 en surface au sol ( possibilité de l'aménager )
Le chauffage et l'eau chaude de la maison principale sont alimentés par la pompe à chaleur ( toute neuve )
La véranda est chauffée par un poêle à bois ( tout neuf) ce qui permet d'avoir un espace cocooning.
Les appartements sont chauffés par des radiateurs électriques et ils ont chacun un ballon d'eau chaude.
Les plus de la maison :
- DPE très correct pour une maison de 1855, - Au tout à l'égout, - Toutes les fenêtres double vitrage sont de très bonne qualité, - Possibilité de garer une voiture sous un grand porche. Parking gratuit à proximité. - Jardin au calme et sans vis à vis. - Une dépendance de 36m2 à finir d'aménagée, qui sert aujourd'hui de rangement et d'atelier. L'eau + évacuation et l'électricité sont déjà installé. Des fenêtres en PVC on été installé récemment.
A visiter rapidement !
Honoraires inclus de 3.49% TTC à la charge de l'acquéreur. Prix hors honoraires 430 000 . Classe énergie D, Classe climat B Montant estimé des dépenses annuelles d'énergie pour un usage standard : entre 4840.00 et 6600.00 sur les années 2021, 2022 et 2023 (abonnements compris). Les informations sur les risques auxquels ce bien est exposé sont disponibles sur le site Géorisques : georisques.gouv.fr.
Votre conseiller WEELODGE CENTER : Maxime TATO Agent commercial (Entreprise individuelle)
300 m²
1 483 €
868 m²
10
5
3.49 %
1855
Oui
Consommations énergétiques
Logement économe
235
Logement énergivore (kWhEP/m2/an)
Émissions de gaz à effet de serre
Faible émission de GES
7
Forte émission de GES(kgeqCO2/m2/an)
Contact Maxime TATO
Contacter gratuitement à l'aide du formulaire ci-dessous.