Honoraires à la charge de l'acquéreur (Prix hors honoraires : 198000 euros).
Charmante Maison de Caractère à Rénover
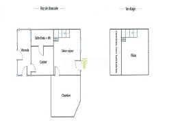
Plongez dans l'histoire et le charme d'une maison ancienne de 1813, nichée dans un cadre paisible et verdoyant. Avec ses 80 m² de surface habitable et son terrain de 516 m², cette demeure plain-pied vous offre un havre de tranquillité et de potentiel. Imaginez-vous dans ce nid douillet, où chaque pièce raconte une histoire et attend d'être rafraîchie pour révéler toute sa splendeur.
La maison se compose de 3 pièces, dont une chambre cosy, une salle d'eau fonctionnelle, et une cuisine nue prête à accueillir vos idées créatives. Les hauteurs sous plafond de 2,70 m apportent une sensation d'espace et de lumière, tandis que les ouvertures en PVC et les portes à double vitrage garantissent une isolation optimale.
Le jardin, d'une superficie identique à celle du terrain, est un véritable écrin de verdure, parfait pour les amateurs de nature et les moments de détente en plein air. La toiture en ardoise naturelle ajoute une touche d'authenticité et de robustesse à cette propriété.
Située dans un quartier bien desservi, cette maison est à proximité immédiate de plusieurs commodités. À seulement 5 minutes à pied, vous trouverez des arrêts de bus et des médecins généralistes. En quelques minutes en voiture, vous accéderez à des crèches, des écoles maternelles et élémentaires, un collège, des restaurants, des parcs et jardins, ainsi que des commerces d'alimentation générale. De plus, la maison est éligible à la fibre optique, garantissant une connexion internet haut débit.
Ne manquez pas l'opportunité de transformer cette maison de caractère en un foyer moderne et confortable. Contactez-nous dès aujourd'hui pour une visite et laissez-vous séduire par son potentiel et son charme intemporel.
Honoraires inclus de 5% TTC à la charge de l'acquéreur. Prix hors honoraires 198 000 . Classe énergie E, Classe climat E Montant estimé des dépenses annuelles d'énergie pour un usage standard : entre 2392.00 et 3237.00 sur les années 2021, 2022 et 2023 (abonnements compris). Les informations sur les risques auxquels ce bien est exposé sont disponibles sur le site Géorisques : georisques.gouv.fr.