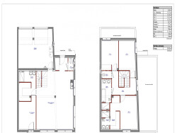
Au coeur d'Aiguelongue, quartier résidentiel et verdoyant, projetez-vous dans votre nouvelle villa moderne aux lignes contemporainesde 136 m² habitables + garage. Au rez de chaussée, un sas d'entrée avec WC et lave mains, et dressing. Une piece de vie de 51m² lumineuse grâce a ses 2 baies vitrées donnant sur la terrasse en bois avec une pergola en alu. Une suite parentale de 18m² avec un grand dressing, une salle d'eau avec douche et meuble double vasques. A l'étage, Vous profiterez de 3 chambres dont une seconde suite parentale avec dressing, salle d'eau avec douche et double vasques. Une salle de bains avec baignoire, double vasque et douche, ainsi qu'un WC séparés viennent compléter l'étage. Elle dispose d'un double garage de 30m² avec un accès direct à la maison, en plus d'une place de parking privative. Prestations de qualités, chau?age et climatisation gainable par pompe à chaleur, carrelage 60x60, wc suspendus, menuiseries en aluminium...Vous profiterez d'un jardin de 420m² au plein coeur de la ville !
Honoraires à la charge du vendeur. Dans une copropriété de 4 lots. Aucune procédure n'est en cours. Non soumis au DPE. Les informations sur les risques auxquels ce bien est exposé sont disponibles sur le site Géorisques : georisques.gouv.fr.
Votre conseiller MIM : Directeur d'Agence - Philippe Anselme Carte T 3402 2025 000 000 019 RCP 3402 2025 000 000149643844. Les informations sur les risques auxquels ce bien est exposé sont disponibles sur le site Géorisques : www.georisques.gouv.fr
Maison contemporaine
136 m²
5 588 €
51 m²
420 m²
5
4
1
1
2 (séparés)
Oui
1
2
1
Oui
Oui (4 lots)
Contact Baena Pablo
Contacter gratuitement à l'aide du formulaire ci-dessous.