Honoraires à la charge de l'acquéreur (Prix hors honoraires : 165000 euros).
À la croisée des centres-bourgs de MORNAC, PRANZAC et CHAZELLES, découvrez une maison individuelle de 132,50 m² offrant un cadre de vie calme et verdoyant, à la campagne tout en restant à proximité des commodités et des axes rapides permettant de rejoindre facilement ANGOULÊME et LA ROCHEFOUCAULD.
Construite au début des années 1980, la maison propose une distribution fonctionnelle et équilibrée, idéale pour une résidence principale familiale, avec la possibilité d'une vie de plain-pied.
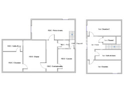
Au-rez-de-chaussée, Vous trouverez une entrée avec couloir desservant cuisine indépendante, un séjour, un salon - salle à manger, une chambre, une salle d'eau, un WC indépendant ;
A l'étage, Un palier desservant deux chambres, une salle de bains avec WC ainsi qu'un espace de rangement.
Les atouts de la maison : * Portail électrique automatique, * Garage fermé, * Dépendances offrant des espaces de stockage complémentaires, * Menuiseries en PVC double vitrage sur tous les ouvrants. * Chauffage électrique complété par des panneaux solaires et des splits muraux au rez-de-chaussée,
Les points d'attention : * Installation électrique partiellement modernisée, avec des points de sécurité à améliorer, cohérents à l'âge du bâti, * Assainissement individuel à revoir, devis de remise aux normes déjà établi.
Performances énergétiques : Consommation énergie primaire : 154 kWh/m2/an (classe C) Consommation énergie finale : 92 kWh/m2/an Émission de gaz à effet de serre : 5 kgCO2/m2/an (classe A) Coûts annuels d'énergies du logement estimés entre 1710 et 2380 euros par an, prix moyen des énergies indexés sur les années 2021, 2022 et 2023, abonnements compris.
? Ce bien conviendra parfaitement à un foyer en recherche d'une maison principale offrant de beaux volumes, une organisation pratique au quotidien et un environnement paisible, avec des travaux d'amélioration ciblés à prévoir pour sécuriser et personnaliser l'habitat.
Pour plus d'informations ou organiser une visite, contactez Hans KOLB.
Honoraires inclus de 4.55% TTC à la charge de l'acquéreur. Prix hors honoraires 165 000 . Classe énergie C, Classe climat A Montant estimé des dépenses annuelles d'énergie pour un usage standard : entre 1710.00 et 2380.00 sur les années 2021, 2022 et 2023 (abonnements compris). Les informations sur les risques auxquels ce bien est exposé sont disponibles sur le site Géorisques : georisques.gouv.fr.
Votre conseiller WEELODGE - Réseau national de mandataires immobiliers : Hans KOLB Agent commercial (Entrepreneur individuel à responsabilité limitée) RSAC 908 315 880 RSAC ANGOULEME
133 m²
1 297 €
661 m²
5
3
1
2 (séparés)
4.55 %
1948
Sud
Ouest
1
1
1
Consommations énergétiques
Logement économe
155
Logement énergivore (kWhEP/m2/an)
Émissions de gaz à effet de serre
Faible émission de GES
5
Forte émission de GES(kgeqCO2/m2/an)
Contact Hans KOLB
Contacter gratuitement à l'aide du formulaire ci-dessous.