Nouveau programme immobilier à Saint-Gilles-Croix-de-Vie Idéalement situé en centre-ville, à proximité immédiate des commerces, des écoles et de la plage, ce programme vous propose 8 maisons neuves : 4 T3 et 4 T4 en R+1.
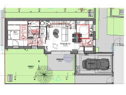
Maison 2 T4 R+1 Au rez-de-chaussée : Entrée avec dégagement Pièce de vie lumineuse Chambre 1 Salle d'eau avec WC Garage attenant Terrasse et jardinet privatifs À l'étage : Palier 2 chambres Salle d'eau Agencement moderne, idéal pour une famille, avec des espaces optimisés pour le confort et la luminosité. Livraison prévue : 1er trimestre 2027
Honoraires à la charge du vendeur. Dans une copropriété de 8 lots. Aucune procédure n'est en cours. Non soumis au DPE. Les informations sur les risques auxquels ce bien est exposé sont disponibles sur le site Géorisques : georisques.gouv.fr.
79.03 m²
4 998 €
23 m²
59 m²
4
3
2
2 (séparés)
2027
Sud
1
1
Oui (8 lots)
Contact Charline GRAVELEAU
Contacter gratuitement à l'aide du formulaire ci-dessous.