Honoraires à la charge de l'acquéreur (Prix hors honoraires : 390000 euros).
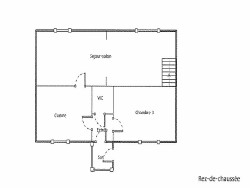
Maison individuelle, à seulement 10mn à pied de la digue de Rochebonne et du marché de Rocabey. Au rez de jardin, une chaufferie donnant sur l'extérieur, une salle de bain avec wc, deux chambres et un dégagement avec escalier. A l'étage, une entrée, une chambre, une cuisine, toilette séparé, et une pièce de vie. Jardin orienté Ouest avec dépendance. Travaux à prévoir.
Honoraires inclus de 4.8% TTC à la charge de l'acquéreur. Prix hors honoraires 390 000 . Classe énergie F, Classe climat F Logement à consommation énergétique excessive. Montant estimé des dépenses annuelles d'énergie pour un usage standard : entre 2847.00 et 3853.00 sur les années 2021, 2022 et 2023 (abonnements compris). Les informations sur les risques auxquels ce bien est exposé sont disponibles sur le site Géorisques : georisques.gouv.fr.
81.72 m²
5 001 €
4
3
1
1 (séparé)
4.8 %
1948
Consommations énergétiques
Logement économe
401
Logement énergivore (kWhEP/m2/an)
Émissions de gaz à effet de serre
Faible émission de GES
88
Forte émission de GES(kgeqCO2/m2/an)
Contact PARAME IMMOBILIER
Contacter gratuitement à l'aide du formulaire ci-dessous.