MAISON ancienne de 87 m2 sur 2 niveaux sur terrain 1323 m2
Descartes 37160
0
Honoraires à la charge de l'acquéreur (Prix hors honoraires : 64000 euros).
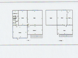
Maison ancienne de 87 m2 sur 2 niveaux, à rénover, sur un terrain clos de 1323 m2 comprenant: séjour 20.70 m2, cuisine 12.42 m2, hall, chambre 13.70 m2, salle d'eau 3.50 m2, WC et veranda. Etage avec escalier extérieur: 2 chambres 10.70 et 17 m2, dressing 6.70 m2. Cave voutée 33 m2. Chauffage central au fuel. Garage (au fond du jardin) de 76 m2 avec une cave de 14 m2. Bien à vendre 69000 EUR HAI dont honoraires 7.80% à la charge de l'acquéreur. La présente annonce immobilière a été rédigée sous la responsabilité éditoriale de Christian JOUZEAU EI o688048237 c.jouzeau@les-professionnels.immo - agent commercial enregistré au RSAC de Paris sous le no 518383179, titulaire de la carte de transaction immobilière pour le compte de la SAS LES PROFESSIONNELS de l' IMMOBILIER immatriculé au RCS Epinal 929012722 (sans détention de fonds) - Bareme consultable sur notre site. Les informations sur les risques auxquels ce bien est exposé sont disponibles sur le site Géorisques. http://www.georisques.gouv.fr - Annonce rédigée et publiée par un Agent Mandataire -
87 m²
793 €
20 m²
1323 m²
4
3
1
1
7.81 %
1
Consommations énergétiques
Logement économe
341
Logement énergivore (kWhEP/m2/an)
Émissions de gaz à effet de serre
Faible émission de GES
92
Forte émission de GES(kgeqCO2/m2/an)
Contact JOUZEAU Christian
Contacter gratuitement à l'aide du formulaire ci-dessous.