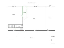
Maison ancienne comprenant au rez de chaussée : Entrée, cuisine avec placards, séjour cheminée. À l'étage : Palier, 2 chambres, salle d'eau. Garage attenant et une pièce au dessus (possibilité de créer une autre chambre. Cour privée sur l'arrière. Double vitrage, chauffage gaz de ville. Cour privative de 180m2. Bien située à Thoury Ferottes, à proximité de Voulx, à 15 Min de Montereau, 20 Min de Moret. L'agence Pinoy immobilier, 33 Grande rue 77940 VOULX, 01.64.70.71.65 vous accompagne à chaque étape de votre projet immobilier. Les informations sur les risques auxquels ce bien est exposé sont disponibles sur le site Géorisques : www.georisques.gouv.fr
77 m²
1 753 €
24 m²
180 m²
3
2
1
Individuel gaz
Séparée
1
1
Consommations énergétiques
Logement économe
366
Logement énergivore (kWhEP/m2/an)
Émissions de gaz à effet de serre
Faible émission de GES
69
Forte émission de GES(kgeqCO2/m2/an)
Contact Pinoy Immobilier
Contacter gratuitement à l'aide du formulaire ci-dessous.