Située dans un quartier calme et agréable, avec tous les commerces et services à proximité, cette maison offre une qualité de vie exceptionnelle.
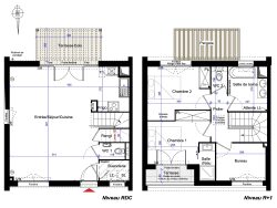
Au rez-de-chaussée, une grande pièce de vie baignée de lumière, orientée plein sud, s'ouvre sur un jardin intime agrémenté d'une pergola idéale pour des moments de détente en extérieur. Un WC indépendant, un espace de rangement et une buanderie avec attente pour lave-linge complètent ce niveau fonctionnel et convivial. À l'étage, vous découvrirez une chambre confortable, un bureau propice au télétravail, ainsi qu'une élégante suite parentale comprenant une salle d'eau et une salle de bain double vasque avec attente pour lave-linge.
Les prestations qualitatives de cette maison sauront vous séduire : parquet en chêne, carrelage 60x60, terrasse en bois, cuisine aménagée et façade en brique apportent confort et esthétique à cet ensemble harmonieux. Cette maison allie confort, luminosité et praticité pour répondre à toutes vos attentes.
Deux places de parking sécurisées complètent ce bien.
Honoraires à la charge du vendeur. Dans une copropriété de 36 lots. Aucune procédure n'est en cours. DPE en cours. Les informations sur les risques auxquels ce bien est exposé sont disponibles sur le site Géorisques : georisques.gouv.fr.