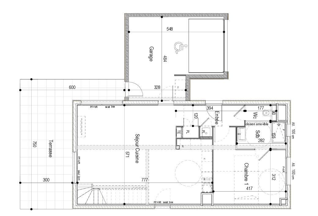
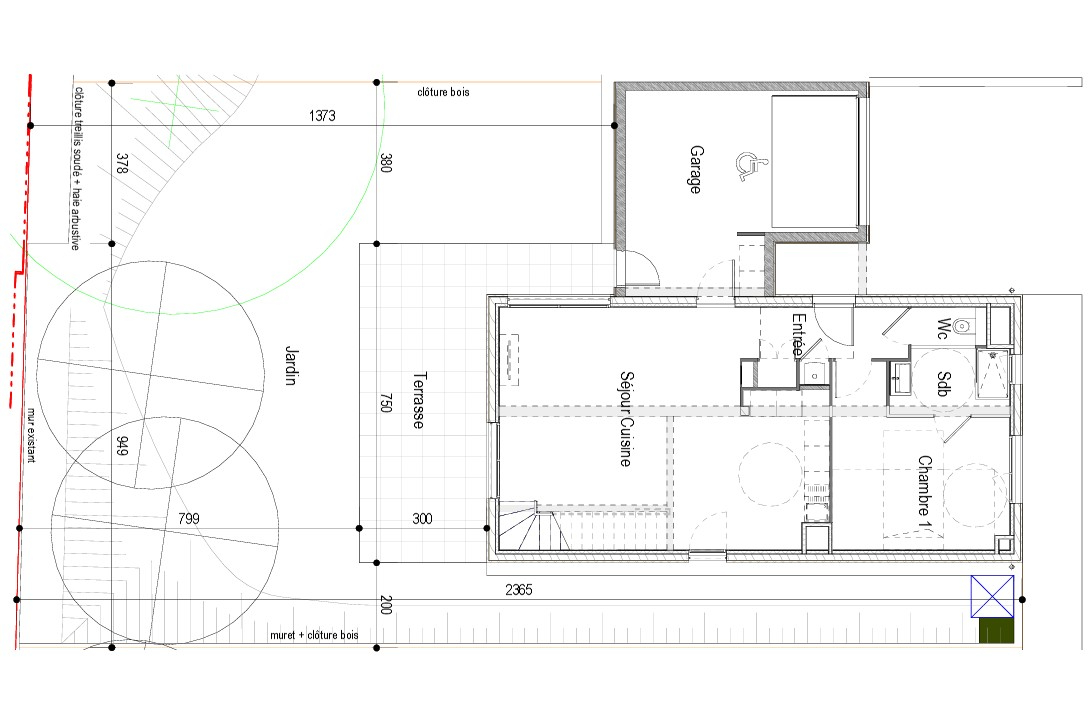
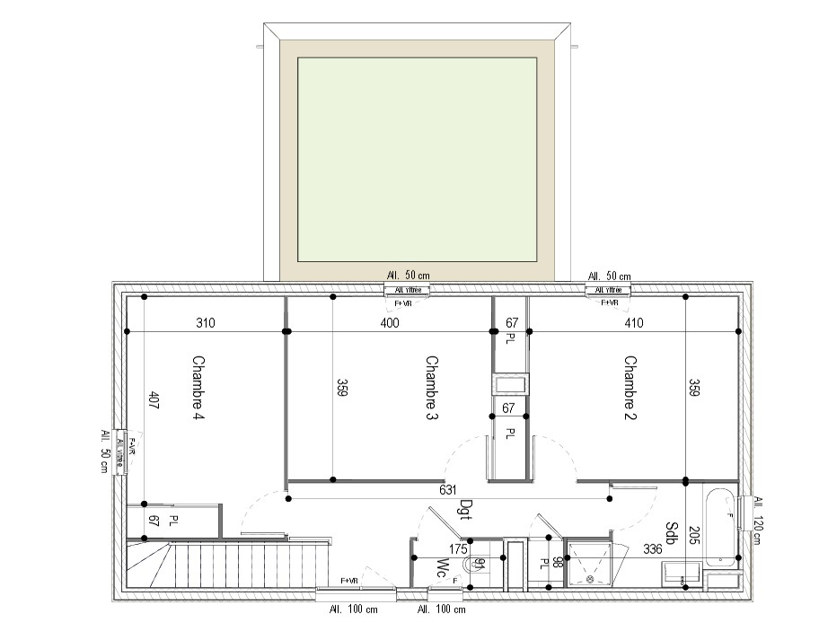
Située à Vénissieux, en bout d'impasse et entourée de champs, cette maison de 1975 développe environ 200 m² habitables sur trois niveaux, au coeur d'une parcelle de 1 010 m² avec piscine. Le rez-de-chaussée s'ouvre sur un séjour lumineux avec cheminée, apportant chaleur et convivialité à l'espace de vie. La cuisine équipée prolonge les volumes et donne accès à une terrasse en surplomb du jardin, offrant une vue dégagée sur la nature environnante. Deux chambres et une salle de bains complètent ce niveau. A l'étage, une chambre unique compose un espace nuit indépendant, propice à la tranquillité. Le niveau inférieur, en rez-de-jardin, accueille une chambre supplémentaire, un salon TV ainsi qu'une piscine intérieure de type couloir de nage, conférant au bien un caractère singulier et un confort de vie tout au long de l'année. A l'extérieur, le jardin arboré constitue un véritable écrin de verdure. Une piscine vient compléter cet espace, permettant de profiter pleinement des beaux jours dans un cadre intime et sans vis-à-vis. L'implantation en fond d'impasse garantit calme et sérénité, tout en restant à proximité des commodités. Cette maison séduit par sa distribution sur plusieurs niveaux, ses deux piscines (intérieure et extérieure) et son environnement naturel privilégié. Maison climatisée. CLASSE ENERGIE : C / CLASSE CLIMAT : B Montant moyen estimé des dépenses annuelles d'énergie pour un usage standard, établi à partir des prix de l'énergie de l'année 2026 : entre 2980 euros et 4110 euros Contact : Ugo - 06 83 06 75 43 ugo lombardi (EI) Agent Commercial - Numéro RSAC : 818 079 014 - LYON.