Honoraires à la charge de l'acquéreur (Prix hors honoraires : 144000 euros).
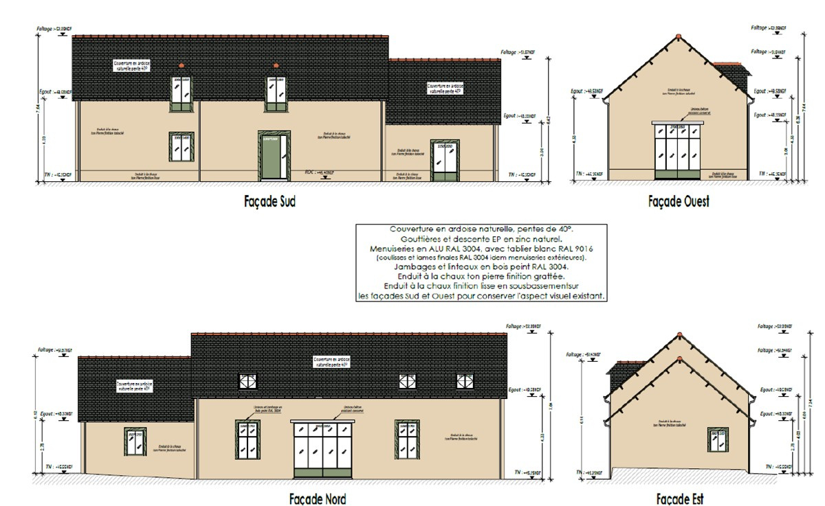
Vern-sur-seiche : En limite de Vern et Nouvoitou, maison ancienne indépendante à rénover au fort potentiel, environ 210 m2 habitables parfaitement exposée sur une belle parcelle de 2345 m2. Permis de construire accordé pour une rénovation de 155 m2 avec 55 m2 de grenier en plus. Environnement agréable avec vue dégagée sur la campagne et aux portes de Rennes. Dépendances sur le terrain pouvant faire office d'atelier ou remise. Bien non soumis au DPE Prix : 144 000 EUR + 5760 EUR (Honoraire 4 % TTC à la charge de l'acquéreur). Pour tous renseignements, merci de contacter C'TOUTAIN & A'LAVENNE Immobilier au 06.10.07.32.74 ou 06.63.16.76.51
210 m²
713 €
2345 m²
7
5
4.00 %
Sud
Ouest
Contact LAVENNE
Contacter gratuitement à l'aide du formulaire ci-dessous.