Liberkeys, via son agent spécialisé du secteur M. Nicolas Vallée vous propose de découvrir cette charmante maison à rénover entièrement de 85 m² située dans un quartier paisible de Saint-Denis. Idéalement placée à proximité du métro Pleyel, accessible en seulement 600 mètres, cette propriété séduira aussi bien les familles que les investisseurs en quête d'un cadre de vie agréable et pratique.
Maison comportant des travaux, nombreuses possibilités.
Devis effectués : entre 80.000€ et 150.000€ selon projet.
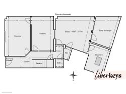
Elle comprend: entrée sur courette, au rdc : entrée, une chambre, cuisine, salle à manger, wc, salle d'eau, 2 bureaux, accès sous sol (15m²).
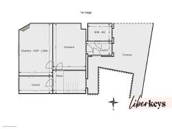
A l'étage : Cuisine, 2 chambres, une salle de bains avec wc, accès à la terrasse de 28m².
Possibilité de tous réagencer, surélevé ou de créer 2 appartements.
La localisation de cette maison est un véritable atout avec un accès rapide aux métros, commerces de proximité, restaurants et établissements scolaires de qualité. Les familles apprécieront la proximité avec les espaces verts, parfaits pour les sorties dominicales.
L'atmosphère conviviale de ce quartier est renforcée par la dynamique culturelle de Saint-Denis, à deux pas de monuments historiques tels que la Basilique Saint-Denis, pour des enrichissements culturels au quotidien.
Ce bien vous plaît ? Visitez-le virtuellement en 3D sur le site de Liberkeys ou contactez directement votre conseiller. Référence annonce : DOM11501. Date de réalisation du diagnostic : 19/12/2023. Les honoraires sont à la charge du vendeur.
85 m²
3 518 €
28 m²
4
3
1
2
2
1930
Sud
Oui
Consommations énergétiques
Logement économe
477
Logement énergivore (kWhEP/m2/an)
Émissions de gaz à effet de serre
Faible émission de GES
105
Forte émission de GES(kgeqCO2/m2/an)
Contact Nicolas VALLEE
Contacter gratuitement à l'aide du formulaire ci-dessous.