Chasseur Immobilier vous présente cette maison à rénover
Située 91 route de Matha - 16370 Mesnac.
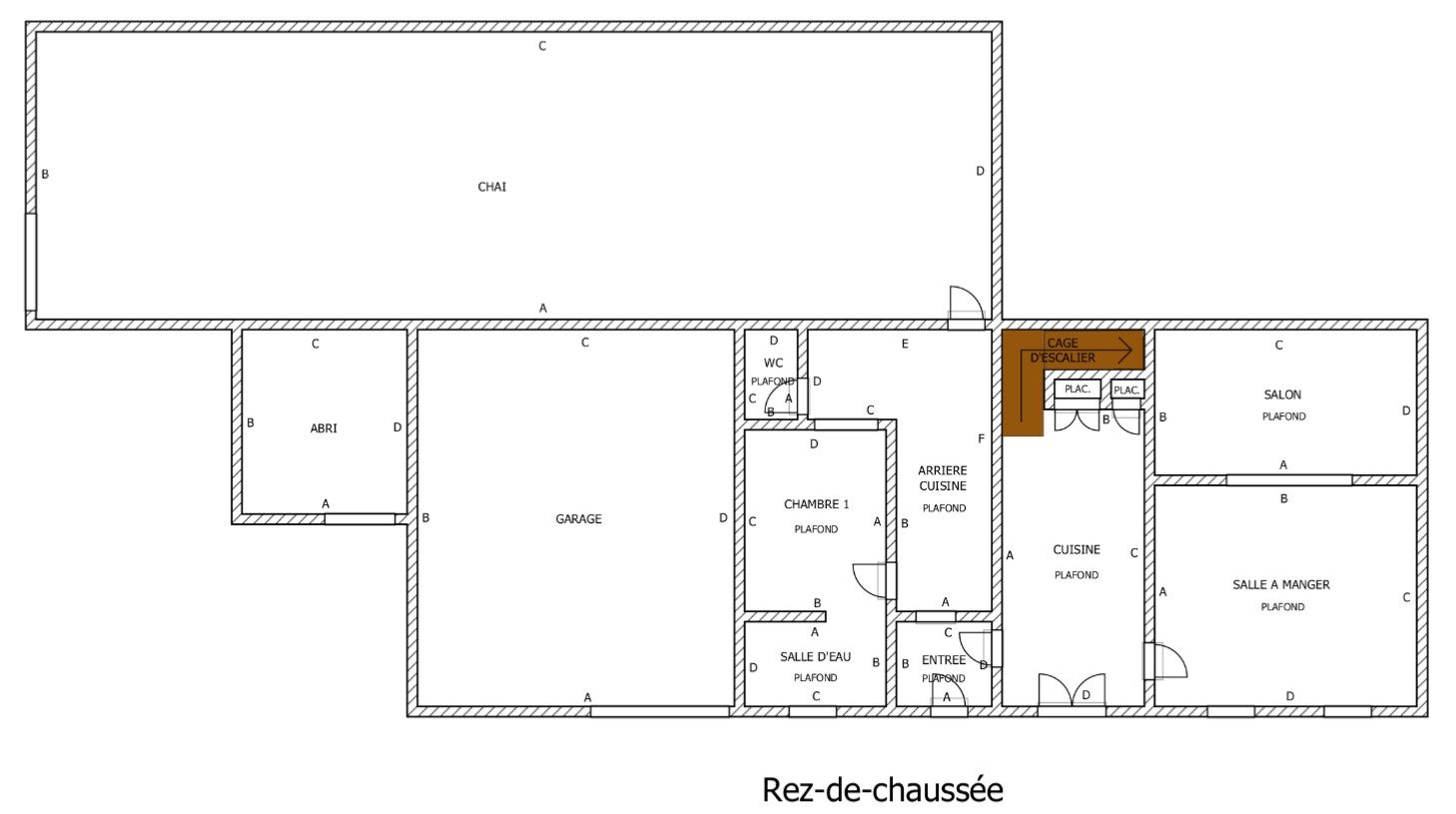
Cette maison, d'environ 133 m² habitables, comprend
- au rez de chaussée : une entrée, une arrière cuisine, une cuisine, un salon, une salle à manger, une chambre, une salle d'eau, un WC.
- à l'étage : un palier, une salle de bains, une chambre. Un grenier.
Un garage, un chai.
Un jardin sur le coté et l'arrière de la maison.
Assainissement tout à l'égout (non conforme à cause d'un toilette non raccordé (à supprimer))
La maison offre de multiples possibilités de rénovation (agrandissement / découpe ...).
L'Audit Energétique de la maison a été effectué.
Afin d'améliorer la performance énergétique, il y a plusieurs scénarios possibles :
Scénario 1 : Rénovation en 1 étape permet de passer de la classe F à la classe A avec un coût estimé des travaux d'environ 43 000 €. (Isolation des murs / Isolation des combles / remplacement des huisseries / installation d'un nouveau système de chauffage ...)
IMPORTANT:
Chers clients: inutile d'aller déranger le vendeur !
Le propriétaire nous a sollicité pour le travail de commercialisation et de visites.
Chers confrères agents immobiliers & mandataires.
Si vous avez un client acquéreur pour ce bien ? contactez nous
Nous serons ravi de faire un inter-agence nous partagerons nos honoraires pour le plus grand bonheur de nos clients respectifs.
Pour toutes visites, contactez
Chasseur Immobilier
Honoraires inclus de 7.87% TTC à la charge de l'acquéreur. Prix hors honoraires 75 000 €. Classe énergie F, Classe climat C Logement à consommation énergétique excessive. Montant moyen estimé des dépenses annuelles d'énergie pour un usage standard, établi à partir des prix de l'énergie de l'année 2021 : entre 2480.00 et 3410.00 €. Les informations sur les risques auxquels ce bien est exposé sont disponibles sur le site Géorisques : georisques.gouv.fr.
Votre conseiller : Dirigeant - Fondateur - Négociateur Immobilier depuis 2003 - Jérôme DESSET
Carte T CPI numero 1602 2020 000 000 001
Bien présenté par Agences de France par délégation.
Agences de France ? SIREN : 899413603 ? Titulaire de la carte T : 29012021000000009 non habilité à percevoir des fonds
133 m²
608 €
4
2
1
1
2
Oui
Consommations énergétiques
Logement économe
359
Logement énergivore (kWhEP/m2/an)
Émissions de gaz à effet de serre
Faible émission de GES
11
Forte émission de GES(kgeqCO2/m2/an)
Contact Jérôme DESSET
Contacter gratuitement à l'aide du formulaire ci-dessous.