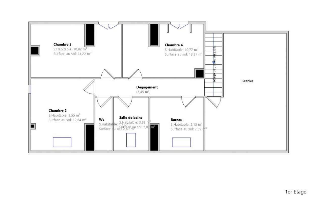
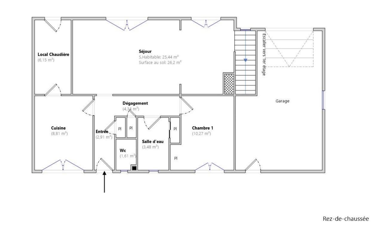
L'Agence de l'Empereur vous présente en exclusivité cette jolie maison d'une surface de vie de 137,5 m2 (hors pièces annexes d'un total de 40 m2) et d'une surface dite « habitable » de 109 m2. Elle se situe dans une petite rue résidentielle très recherchée, à seulement 5 minutes à pied du parc de Bois-Préau et 12 minutes du centre-ville. 3 ou 4 chambres selon les aménagements, un sous-sol total semi-enterré avec garage et un agréable jardin d'environ 170 m2. Au rez-de-chaussée un peu surélevé (hauteur sous plafond 2,80 m) : une entrée avec placard, un agréable séjour traversant orienté Sud-Est et Nord-Ouest de 37 m2 donnant accès au jardin par quelques marches. Cuisine séparée d'environ 9 m2 , pouvant s'ouvrir sur le séjour grâce à la pose d'un IPN. Une salle de douche avec WC. À l'étage, un couloir avec placard dessert deux chambres de 11,5 m2 et 13,3 m2 également dotées de placards intégrés, une troisième chambre/bureau mansardée et une salle de bains avec WC. Au dernier étage, un palier et une chambre/bureau mansardée. Au sous-sol semi-enterré, un dégagement donnant accès à une pièce avec fenêtre de 10 m2 pouvant être aménagée en chambre d'appoint, un garage, une buanderie et une pièce bureau de 10 m2 avec fenêtre. Vous apprécierez cette adresse, l'agréable maison et son jardin, ses orientations, l'environnement calme. Centre Iéna à 7 minutes : boulangerie, pharmacie, Carrefour City, Picard, coiffeur, restaurants... Excellente carte scolaire publique : élémentaire George Sand à 5 min, collège La Malmaison à 15 min, lycée Richelieu à 5 min et établissements privés renommés dans le quartier (Daniélou, Passy-Buzenval, Charles Péguy, école Montessori). Bus 467 à deux pas. Double vitrage, chauffage et production d'eau chaude par chaudière gaz Frisquet de 2016. Garage et second stationnement en extérieur devant le garage. Taxe foncière : environ 880 EUR/an. Visite en vidéo 4K : https://www.youtube.com/watch?v=i2L_JAaRJTQ Les informations sur les risques auxquels ce bien est exposé sont disponibles sur le site Géorisques : www.georisques.gouv.fr
120 m²
7 250 €
37 m²
330 m²
5
4
1
1
2
1958
Est
Ouest
1
1
Consommations énergétiques
Logement économe
232
Logement énergivore (kWhEP/m2/an)
Émissions de gaz à effet de serre
Faible émission de GES
49
Forte émission de GES(kgeqCO2/m2/an)
Contact Agence De L'empereur
Contacter gratuitement à l'aide du formulaire ci-dessous.