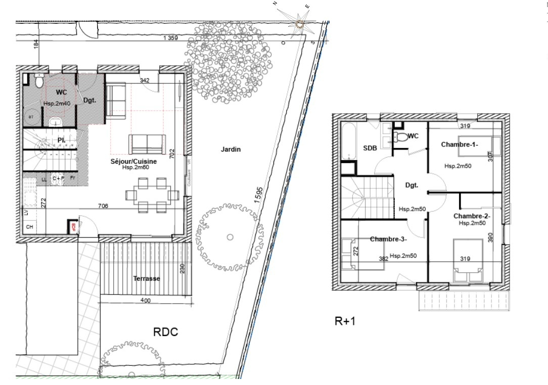
Nous avons le plaisir de vous proposer à la vente une magnifique maison située allée Dulcie September, dans un lotissement paisible et bien entretenu. Caractéristiques de la maison : - Surface habitable : 106 m2 - Nombre de chambres : 3 (possibilité de créer une 4ème) - Salle de bain avec balnéothérapie et douche - Salon spacieux - Cuisine équipée - Deux garages (dont un de 24 m2) - Deux terrasses - Jardin de 330 m2 - Terrain total de 430 m2 (maison incluse) - Deux points d'eau dans le jardin - Cabanon en dur au fond du jardin - Cumulus et chaudière récente - Charges annuelles : 277 euros (charges copropriétaires, entretien chaudière, espaces verts) Équipements supplémentaires : - 3 climatisations avec 3 groupes extérieurs - Fibre optique - Alarme connectée sur le portable Informations supplémentaires : - Année de construction : 1988 Cette maison offre un cadre de vie idéal pour les familles, avec ses espaces extérieurs bien aménagés. Pour plus d'informations ou pour organiser une visite, n'hésitez pas à nous contacter. Prix : 329 400 euros honoraires charge du vendeur. DPE : D Contact : Valentin SANZ Y PRAST / 0789281453 / v.sanzyprast@solygest.com
106 m²
3 108 €
26 m²
430 m²
5
3
1
1
2
23 € / mois
1988
2
2
Oui
Oui
Oui
Consommations énergétiques
Logement économe
183
Logement énergivore (kWhEP/m2/an)
Émissions de gaz à effet de serre
Faible émission de GES
43
Forte émission de GES(kgeqCO2/m2/an)
Contact
Contacter gratuitement à l'aide du formulaire ci-dessous.