Maison avec jardin de 6 pièces à fort potentiel à rénover su
Nanterre 92000
0
Honoraires à la charge du vendeur.
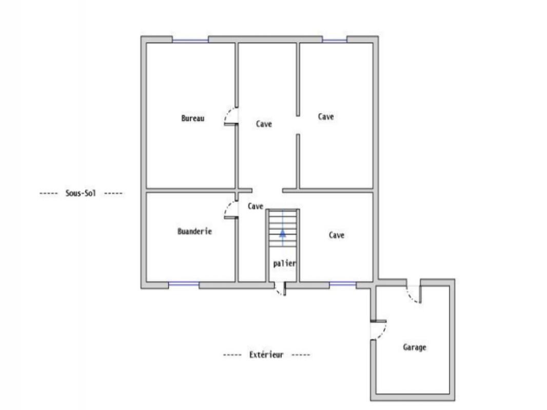
Sur le Mont Valérien à Nanterre, rue de Saint-Cloud, maison atypique de 98 m2avec jardin arboré (6 pièces, 3 chambres) à rénover entièrement selon vos envies. Édifiée sur une parcelle de 230 m2, elle se compose au rez-de-chaussée d'une cuisine avec salle à manger, d'une buanderie et de WC séparés. Au premier étage, un double salon ouvre sur une terrasse et un jardin avec abri (15 m2). Au second, deux chambres dont une avec double mezzanine, ainsi qu'une chambre d'enfant ou bureau. Salle de bains en entre-étages (baignoire, cabine de douche, bidet, WC). Cave en sous-sol. Grenier sous les combles. Des travaux de décoration et de rénovation (fenêtres) sont à prévoir dans l'ensemble de la maison, laissant la possibilité de la personnaliser entièrement et de valoriser son potentiel. Parfait pour un projet sur mesure. Le bien est situé en copropriété horizontale (2 lots) sans charges ni assemblée générale. Nombreuses possibilités d'évolution. Parking possible en location à proximité (50 EUR/mois). Diagnostics E. Visite indispensable pour imaginer votre futur chez vous ! Cette annonce vous est proposée par THOMAS LEFAUCHEUX - EIRL - NoRSAC: 790 944 722, Enregistré à Greffe du tribunal de commerce de NANTERRE - Annonce rédigée et publiée par un Agent Mandataire -
98 m²
4 888 €
25 m²
230 m²
6
3
1
2
1985
Est
Ouest
Oui
2
Oui (2 lots)
Consommations énergétiques
Logement économe
251
Logement énergivore (kWhEP/m2/an)
Émissions de gaz à effet de serre
Faible émission de GES
49
Forte émission de GES(kgeqCO2/m2/an)
Contact LEFAUCHEUX
Contacter gratuitement à l'aide du formulaire ci-dessous.