Maison avec studio indépendant, piscine et jardin Travaux
Savigny-sur-Orge 91600
0
Honoraires à la charge du vendeur.
Située dans un quartier calme, cette maison construite en 1990 offre un cadre de vie agréable et prestations de qualité.
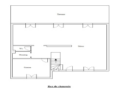
- Rez-de-chaussée : Une entrée accueillante, un séjour double lumineux avec cheminée, une salle à manger conviviale, un dressing, une cuisine équipée, des toilettes avec lave-mains et une terrasse idéale pour profiter de l'extérieur.
- Étage : 3 chambres spacieuses, dont une avec balcon, une salle de bain, une salle d'eau et toilette.
- Sous-sol : Un studio indépendant, comprenant un espace cuisine, une pièce polyvalente, une salle d'eau, un toilette. À cela s'ajoutent un garage, une buanderie, une pièce supplémentaire et la machinerie de la piscine.
Extérieur & équipements : Un jardin agréable, un portail automatisé, et une PISCINE privée. Chauffage individuel électrique et production d'eau chaude sanitaire électrique, assurant une parfaite autonomie.
Travaux à prévoir : Quelques rénovations pour mettre le bien à votre goût et en tirer tout son potentiel.
Un bien rare, idéal pour ceux qui recherchent espace, confort et tranquillité !
N'hésitez pas à nous contacter pour tout renseignement complémentaire au 01 69 25 20 20 ou via notre courriel : lj-immo@orange.fr, ou venez directement dans notre AGENCE située au 184, Avenue Gabriel Péri à Sainte Geneviève des bois (91700). Les informations sur les risques auxquels ce bien est exposé sont disponibles sur le site Géorisques : www.georisques.gouv.fr
122 m²
3 215 €
4 m²
56 m²
354 m²
5
3
1
2
3
1990
1 (4 m²)
1
1
Oui
1
Oui
Oui
Oui
Oui
Consommations énergétiques
Logement économe
376
Logement énergivore (kWhEP/m2/an)
Émissions de gaz à effet de serre
Faible émission de GES
12
Forte émission de GES(kgeqCO2/m2/an)
Contact Lj Immo
Contacter gratuitement à l'aide du formulaire ci-dessous.