MAISON BOURGEOISE de 253 m2 sur terrain de 1298 m2
Descartes 37160
0
Honoraires à la charge de l'acquéreur (Prix hors honoraires : 310000 euros).
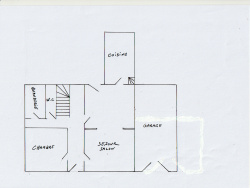
Maison bourgeoise de 253 m2 du 19ème, proche centre ville, école et collége. Plafond de 3 m avec rosaces et cheminées en marbre, comprenant: séjour-salon 34 m2, cuisine 19 m2, chambre 15 m2, entrée avec escalier, WC, buanderie 5 m2. Etage: 4 chambres de 16 m2 chacune, dressing de 3 m2, bureau 11 m2, palier, salle de bains + douche et WC 13 m2, salle d'eau + WC 3 m2. 2ème étage: palier, chambre 15 m2, salle de jeux 100 m2. Chauffage central au gaz de ville. Double vitrage. Garage de 38 m2. Terrain clos et arboré de 1298 m2. Bien à vendre 325500 EUR HAI dont honoraires 5 % à la charge de l'acquéreur. La présente annonce immobilière a été rédigée sous la responsabilité éditoriale de Christian JOUZEAU EI o688048237 c.jouzeau@les-professionnels.immo - agent commercial enregistré au RSAC de Paris sous le no 518383179, titulaire de la carte de transaction immobilière pour le compte de la SAS LES PROFESSIONNELS de l' IMMOBILIER immatriculé au RCS Epinal 929012722 (sans détention de fonds) - Bareme consultable sur notre site. Les informations sur les risques auxquels ce bien est exposé sont disponibles sur le site Géorisques. http://www.georisques.gouv.fr - Annonce rédigée et publiée par un Agent Mandataire -
253 m²
1 287 €
1298 m²
8
6
1
1
3
5.00 %
27/01/2026
1850
1
Consommations énergétiques
Logement économe
303
Logement énergivore (kWhEP/m2/an)
Émissions de gaz à effet de serre
Faible émission de GES
67
Forte émission de GES(kgeqCO2/m2/an)
Contact JOUZEAU Christian
Contacter gratuitement à l'aide du formulaire ci-dessous.