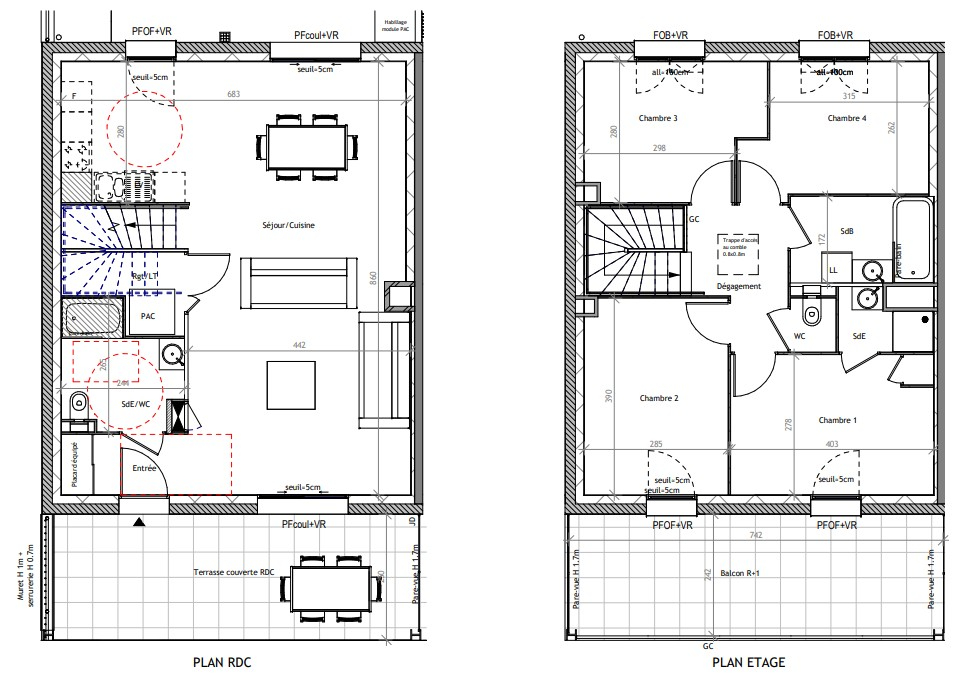
EXCLUSIVITÉ BRON / Secteur mairie, résidentiel et recherché Venez découvrir cette jolie maison de 80 m² Carrez (100 m² au sol), parfaite pour une petite famille, nichée dans un environnement calme et proche de toutes les commodités. On y accède par un agréable jardin et une terrasse couverte, idéale pour profiter de l'extérieur. La maison se compose de deux niveaux : ? Rez-de-chaussée Une belle pièce de vie d'environ 45 m², lumineuse et conviviale Une cuisine ouverte et attenante Une entrée fonctionnelle Un WC ? À l'étage Une première chambre avec sa salle d'eau privative Une deuxième chambre avec sa salle de bains Des rangements et deux WC Et surtout : des combles aménagées avec mezzanine, parfaites pour un coin bureau, jeux ou rangement supplémentaire Un stationnement privatif complète le bien, et la rue offre également des places gratuites. Localisation idéale : À 5 minutes à pied du marché de la mairie de Bron (lundi et vendredi), à proximité immédiate des commerces de la rue Camille Rousset : boulangerie, coiffeur, traiteur, boucher, fromager, caviste Transports accessibles : bus + tram T2 et T5, périphérique à moins de 7 minutes. Sectorisation scolaire : École Alsace-Lorraine, Collège Pablo Picasso, Lycée Jean-Paul Sartre, Lycée Tony Garnier. Confort moderne : Volets roulants électriques sur toutes les fenêtres et climatisation réversible au rez-de-chaussée.
Sonia MOUSSA CESAR & BRUTUS RSAC LYON 498716224 06 27 99 24 94 ou par mail sonia.moussa@cesaretbrutus.com REFERENCE : SMO-9135
Honoraires à la charge du vendeur. Dans une copropriété de 2 lots. Aucune procédure n'est en cours. Classe énergie D, Classe climat B Montant estimé des dépenses annuelles d'énergie pour un usage standard : entre 1307.00 et 1769.00 sur les années 2021, 2022 et 2023 (abonnements compris). Les informations sur les risques auxquels ce bien est exposé sont disponibles sur le site Géorisques : georisques.gouv.fr.