Maison Buzenval DPE C, 4 chambres, jardin, garage et sous-
Rueil-Malmaison 92500
0
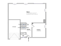
L'Agence de l'Empereur vous présente cette maison de 4 chambres, DPE C, construite en 2006 sur une parcelle de 452 m2, 158 m2 habitables + 115 m2 de surfaces carrelées et hauts de plafond en sous-sol et garage. Au rez-de-chaussée, l'entrée dessert une cuisine de 13,4 m2, partiellement ouverte sur le salon. La pièce de vie de plus de 51 m2 donne de plain-pied sur le jardin, Est et Sud, et l'une des portes-fenêtres s'ouvre sur une pergola climatique qui optimisera les moments de plein air. A l'étage, les chambres de 11,60, 14 et 14,50 m2, et une suite parents de 24 m2 - plus salle d'eau de 3,50 m2 - une salle de bains et des commodités séparées. Le sous-sol total dispose de plusieurs pièces très saines de 11 et 23 m2, et d'une spectaculaire salle de 57 m2 que vous pourrez éclairer avec des cours anglaises, propice à tous vos projets de loisirs.
Garage latéral de 20 m2, 6 m de long, attenant à la maison avec son point d'eau pratique et au sol une grande trémie qui permettra de descendre au sous-sol tous vos achats de loisir un peu encombrants, comme par exemple un jacuzzi, un billard et tous les aménagements volumineux que vous imaginerez.
Vous apprécierez cette rue peu passante, se terminant en impasse, l'accès à 50 m à la forêt de St Cucufa, l'arrêt de bus 467 à deux pas, desservant la gare RER A et Boulogne et les établissements Passy Buzenval à deux pas, l'école Daniélou et le lycée Richelieu à quelques minutes en bus ou à vélo. Eau chaude et chauffage électriques, avec en rez-de-chaussée un plancher basse température 3 zones. Ce bien n'est pas en copropriété. Les informations sur les risques auxquels ce bien est exposé sont disponibles sur le site Géorisques : www.georisques.gouv.fr
158 m²
6 899 €
50 m²
6
4
1
1
2
2006
1
Consommations énergétiques
Logement économe
177
Logement énergivore (kWhEP/m2/an)
Émissions de gaz à effet de serre
Faible émission de GES
6
Forte émission de GES(kgeqCO2/m2/an)
Contact Agence De L'empereur
Contacter gratuitement à l'aide du formulaire ci-dessous.