L'agence Victoire Propriétés vous propose à la vente une maison de 80m² de surface habitable située à 500 mètres du port de Cassis, à proximité des commerces et du centre.
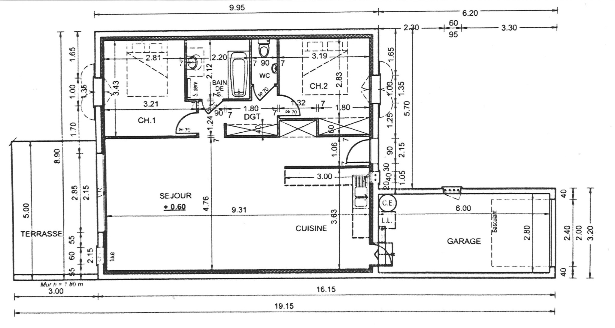
La maison est composée d'un salon séjour, une cuisine indépendante, deux chambres, un dressing, une salle d'eau et un WC indépendant. L'ensemble est à rénover. Possibilité d'agrandissement et de création de terrasse Climatisation réversible installée, prévoir travaux de rafraîchissement.
Il est possible d'acquérir deux garages (24 et 16 m2) en supplément du prix affiché.
315 000 euros TTC (honoraires intégralement à la charge du vendeur)
DPE D en date du 23/03/2025 // GES B Montant moyen estimé des dépenses annuelles d'énergie pour un usage standard, établi à partir des prix de l'énergie des années 2021,2022, 2023 : entre 1420 et 1970 euros.
Les informations sur les risques auxquels ce bien est exposé sont disponibles sur le site Géorisques : www. Géorisques. gouv. fr
Guillaume Duvivier Tel : 06 62 37 43 39
Honoraires à la charge du vendeur. Dans une copropriété de 4 lots. Aucune procédure n'est en cours. Classe énergie D, Classe climat B Montant estimé des dépenses annuelles d'énergie pour un usage standard : entre 1420.00 et 1970.00 sur les années 2021, 2022 et 2023 (abonnements compris). Les informations sur les risques auxquels ce bien est exposé sont disponibles sur le site Géorisques : georisques.gouv.fr.
Votre conseiller Victoire Propriétés : Co-Gérant - Guillaume Duvivier Carte T CPI13102018000030883 RCP 61720086
Maison ancienne
80 m²
3 938 €
4
2
1
1 (séparé)
1
Oui
Oui
Oui (4 lots)
Consommations énergétiques
Logement économe
230
Logement énergivore (kWhEP/m2/an)
Émissions de gaz à effet de serre
Faible émission de GES
7
Forte émission de GES(kgeqCO2/m2/an)
Contact Victoire Propriétés
Contacter gratuitement à l'aide du formulaire ci-dessous.