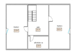
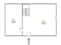
L'Agence de la Ferme vous propose cette charmante maison mitoyenne d'un seul côté, d'une superficie de 73 m2, offrant une vue dégagée sur le château de Chevreuse. Idéalement située à proximité immédiate du centre-ville, des écoles, des commerces et de la forêt. Elle se compose au rez-de-chaussée d'un séjour avec cheminée, d'une cuisine indépendante ainsi que de WC séparés. À l'étage, vous trouverez deux chambres et une salle de bains avec WC. Un garage complète ce bien, implanté sur un terrain de 203 m2. Des travaux de plomberie et d'électricité ont déjà été réalisés. Des travaux de rafraîchissement et de finitions restent à prévoir, laissant place à un fort potentiel d'aménagement. L'environnement est agréable et recherché.
73 m²
3 795 €
203 m²
3
2
1
1
Est
Ouest
2
1
Consommations énergétiques
Logement économe
372
Logement énergivore (kWhEP/m2/an)
Émissions de gaz à effet de serre
Faible émission de GES
82
Forte émission de GES(kgeqCO2/m2/an)
Contact AGENCE IMMOBILIERE DU GOLF
Contacter gratuitement à l'aide du formulaire ci-dessous.