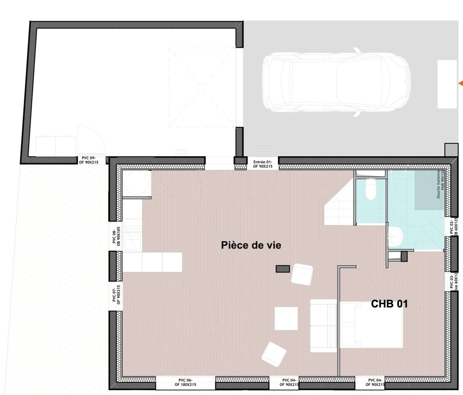
A vendre Saint-Vincent sur Oust Christophe Année pour LEKYP IMMOBILIER REDON vous propose cette belle maison contemporaine de 2020 aux volumes généreux, sur un terrain clos de 4 000 m² environ avec garages, D'une surface habitable de 165 m² de plain-pied, elle se compose d'un salon/séjour de 65 m², d'une cuisine aménagée/équipée, d'une suite parentale 30m² environ, deux chambres dont une avec salle d'eau privative, wc. Grande pièce technique équipée d'une salle d'eau et wc. Matériaux haut de gamme, aucun travaux à prévoir. Garages de 185m² avec rangements et grenier pouvant accueillir plusieurs voitures et camping-car. Portail et portes de garage motorisés, maison économe (chauffage poêle à pellet), ouvertures double vitrage Alu, aspiration centralisée, assainissement conforme. Maison lumineuse avec vue dégagée sur la campagne à 10 minutes de la gare TGV de Redon. Pour prendre rendez-vous, être conseillé, visiter, contactez Christophe ANNEE par mail ou par téléphone. Annonce rédigée et publiée par un agent commercial N° 801210048 immatriculée au RSAC de Rennes auprés de la Sté Lekyp Immobilier. Carte professionnelle n°CPI 8501 2020 000 045 240. Mandat N° 29 Prix du bien : 499 000 honoraires de négociation à la charge du vendeur. Le professionnel vous conseille, garantit et sécurise votre projet.
Honoraires à la charge du vendeur. Classe énergie A, Classe climat A Montant estimé des dépenses annuelles d'énergie pour un usage standard : entre 900.00 et 1270.00 sur les années 2021, 2022 et 2023 (abonnements compris). Les informations sur les risques auxquels ce bien est exposé sont disponibles sur le site Géorisques : georisques.gouv.fr.