RARE MAISON CONTEMPORAINE CONSTRUITE EN 2012 4 chambres
Cette construction contemporaine de 2012, conforme à la norme RT 2012 coche toutes les cases pour accueillir votre famille et recevoir vos amis ! Disposant d'une habitation de 162 m² reposant sur un terrain clos de 535 m², dans un quartier résidentiel paisible.
Dès l'entrée, vous serez séduits par un grand espace de vie de plus de 50 m², baigné de lumière, ouvert sur une cuisine équipée. Côté nuit, l'espace comprend quatre chambres, dont une spacieuse suite parentale de 36 m² avec dressing, salle d'eau privative et WC, ainsi qu'une belle salle de bain familiale équipée d'une baignoire Balnéo et d'un second WC indépendant.
Une mezzanine aménagée en espace bureau idéale pour le télétravail.
En sous-sol, profitez d'un garage double avec porte motorisée, d'une buanderie et d'un espace pour le stockage.
Vous allez l'aimer pour ses volumes généreux et son agencement bien pensé, où chacun peut vivre à son rythme tout en profitant d'espaces communs conviviaux. La suite parentale, les chambres bien séparées et les espaces de vie confortables en font un lieu où chaque membre de la famille trouve sa place.
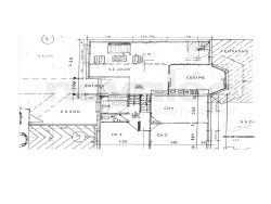
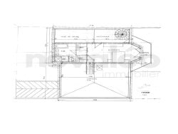
Un plan détaillé de la maison est disponible sur demande pour mieux visualiser la répartition des espaces.
Côté confort & prestations :
- Chauffage au sol / gaz de ville - fenêtres aluminium et triple vitrage - Volets roulants électriques - Prestations modernes et bien entretenues - A seulement 10 minutes de Reims en train et 15 minutes en voiture, avec écoles, commerces et collège sur place. - Classement énergétique C
Localisation idéale : Proche des communes de Boult-sur-Suippe, Isles-sur-Suippe Warmeriville, Witry-les-Reims.
Contactez-moi dès maintenant pour visiter ! Agathe PETIT - 06.21.46.00.21
Ce bien est sous Mandao ,sous réserve que l'offre soit acceptée par le vendeur. Annonce rédigée par Mme Agathe PETIT, négociatrice du réseau Novaléo - inscrite au RSAC Reims- n°424514057
Honoraires à la charge du vendeur. Classe énergie C, Classe climat C Montant estimé des dépenses annuelles d'énergie pour un usage standard : entre 1820.00 et 2500.00 sur les années 2021, 2022 et 2023 (abonnements compris). Les informations sur les risques auxquels ce bien est exposé sont disponibles sur le site Géorisques : georisques.gouv.fr.
Maison contemporaine
162 m²
2 463 €
535 m²
7
4
1
1
2 (séparés)
2012
1
2
1
Consommations énergétiques
Logement économe
120
Logement énergivore (kWhEP/m2/an)
Émissions de gaz à effet de serre
Faible émission de GES
24
Forte émission de GES(kgeqCO2/m2/an)
Contact Iad France - Agathe PETIT
Contacter gratuitement à l'aide du formulaire ci-dessous.