La Première Agence vous invite à découvrir cette propriété contemporaine d'exception, conçue comme un véritable lieu de vie, où architecture, volumes et prestations haut de gamme se rencontrent pour offrir un confort rare. Les matériaux et équipements ont été pensés dans les moindres détails : les sols habillés d'un carrelage grand format structurent l'espace.
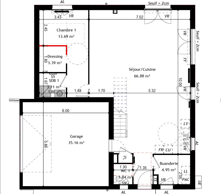
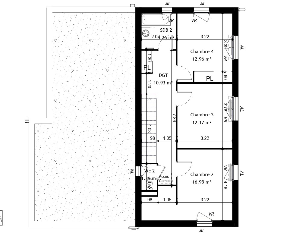
Dès l'entrée, la maison dévoile une pièce de vie spectaculaire de 62 m², baignée de lumière et pensée pour une relation permanente entre l'intérieur et l'extérieur. La cuisine de fabrication italienne et prête à équiper, épouse pleinement la hauteur de la pièce. La baie vitrée, véritable signature architecturale, permet une ouverture quasi totale sur la terrasse, créant une continuité naturelle avec l'espace extérieur et le couloir de nage chauffé pour un usage en toute saison. L'espace nuit a été conçu pour préserver intimité et fonctionnalité.Il comprend deux chambres confortables, un bureau idéal pour le télétravail, une salle de bains élégante avec WC, ainsi qu'une suite parentale offrant un espace privé raffiné en intégrant un espace cinéma privé avec écran motorisé.
La maison s'organise autour d'une architecture en U, mettant en valeur une vaste terrasse, pensée comme une véritable pièce à vivre à ciel ouvert. Un espace braséro vient parfaire l'ensemble, invitant à des moments de convivialité dans un cadre résolument contemporain. Les matériaux et finitions très haut de gamme, choisis avec exigence, confèrent à ce bien une atmosphère élégante, sobre et intemporelle.
Sur l'aspect technique le chauffage au sol et le contrôle de la température par air zone assurent un confort absolu. Un garage équipé d'une prise de recharge pour véhicule électrique ainsi qu'un stationnement extérieur complètent les prestations.
Une maison rare, aux lignes épurées et aux prestations d'exception, destinée aux amateurs de biens contemporains et confidentiels. Pour découvrir ce lieu unique et organiser une visite, contactez dès maintenant La Première Agence.
Honoraires à la charge du vendeur. Classe énergie A, Classe climat A Montant estimé des dépenses annuelles d'énergie pour un usage standard : entre 640.00 et 930.00 sur les années 2021, 2022 et 2023 (abonnements compris). Les informations sur les risques auxquels ce bien est exposé sont disponibles sur le site Géorisques : georisques.gouv.fr.
Votre conseiller La première Agence : Pierre Tardy Agent commercial (Entreprise individuelle) RSAC 879 684 504
Maison contemporaine
137.2 m²
5 248 €
63 m²
757 m²
5
4
1
1
1 (séparé)
2024
Sud
Oui
Oui
Consommations énergétiques
Logement économe
53
Logement énergivore (kWhEP/m2/an)
Émissions de gaz à effet de serre
Faible émission de GES
1
Forte émission de GES(kgeqCO2/m2/an)
Contact La première Agence
Contacter gratuitement à l'aide du formulaire ci-dessous.