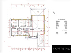
À moins de cinq minutes des commodités et des axes principaux .Cette belle villa contemporaine familiale de 145 m2 séduit par ses prestations soignées et son emplacement privilégié au sud de Montauban. Construite sur un terrain plat et clôturé de 990 m2 elle offre un vaste espace de vie baigné de lumière. Composé d'un salon ouvrant sur une terrasse couverte et un jardin verdoyant donnant la vue sur une zone verte non constructible. La cuisine américaine entièrement équipée donne sur une arrière-cuisine pratique, cellier et garage attenants, facilitant le quotidien. L'espace nuit comprend quatre chambres dont une suite parentale avec dressing et salle d'eau privative ainsi que trois chambres dotées de placards. L'ensemble est complété par une salle de bain avec douche et baignoire avec un sanitaire et un WC séparé. Un garage isolé complète les prestations de cette maison récente pensée pour allier confort moderne et qualité de vie. Économique et fonctionnelle elle bénéficie d'un diagnostic énergétique réalisé le 12 juin 2025 avec une consommation primaire de 56 kWh/m2/an et des dépenses annuelles estimées entre 680 EUR et 970 EUR sur les années 2021 à 2023 abonnements compris. Son emplacement exceptionnel à proximité immédiate d'une école maternelle accessible à pied et avec un accès rapide à la rocade et à Toulouse en fait une opportunité rare dans le secteur. Un cadre de vie idéal pour une famille en quête de calme, de modernité et de sérénité. Pour toute information complémentaire je serai ravi de vous apporter tous les détails nécessaires et de répondre à vos questions. N'hésitez pas à prendre contact avec votre Conseiller immobilier Expertimo afin d'organiser une visite et découvrir pleinement le potentiel de ce bien. Cette annonce vous est proposée par DZAFIC Devad - EI - NoRSAC: 949 317 838, Enregistré à Greffe du tribunal de commerce de MONTAUBAN - Annonce rédigée et publiée par un Agent Mandataire -
141 m²
2 333 €
991 m²
5
4
1
1
2
2022
Est
Ouest
6
1
2
Oui
Oui
Consommations énergétiques
Logement économe
56
Logement énergivore (kWhEP/m2/an)
Émissions de gaz à effet de serre
Faible émission de GES
1
Forte émission de GES(kgeqCO2/m2/an)
Contact Devad DZAFIC
Contacter gratuitement à l'aide du formulaire ci-dessous.