Maison d'architecte spacieuse et lumineuse de 151?m² sur 1?164?m² en zone constructible, située dans un quartier calme et recherché de Montbert.
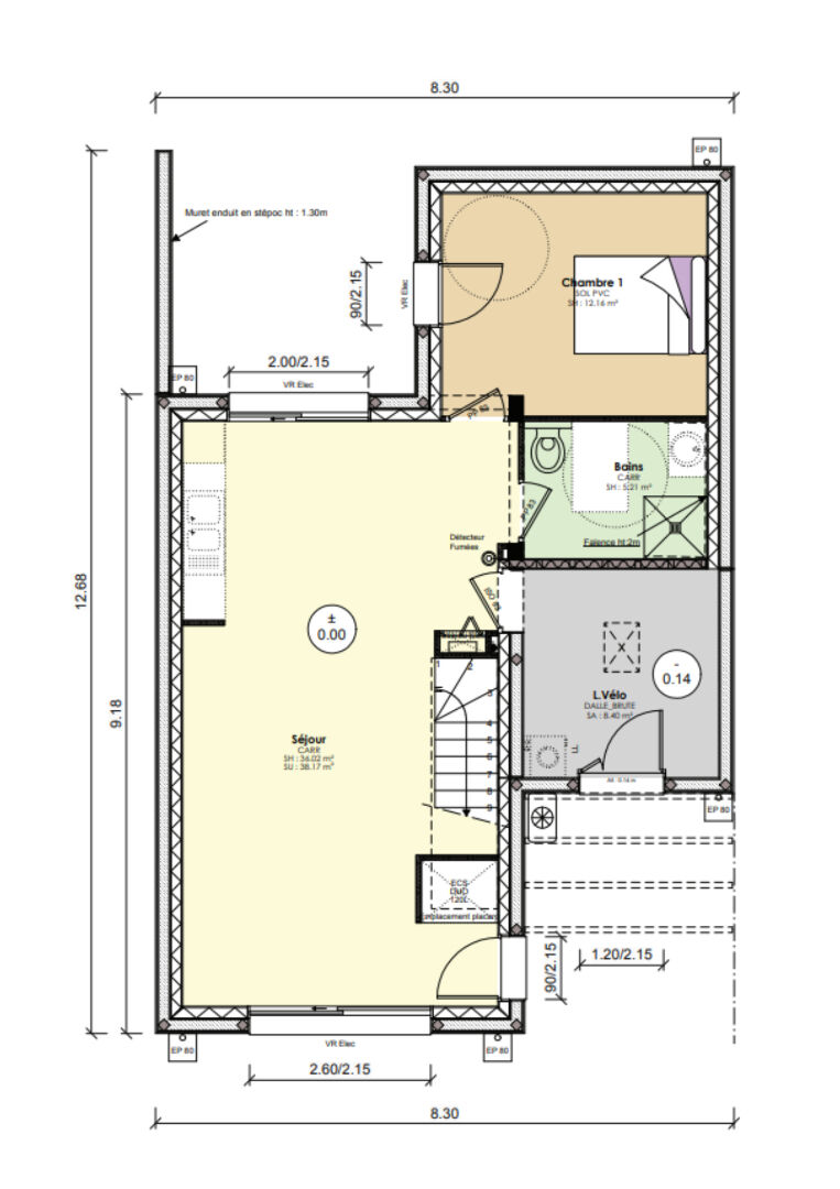
Le bien : 8 pièces : 5 chambres, 2 salles d'eau, 2 WC indépendants Construction 1999, agrandie en 2008 Structure bois + parpaing, isolation performante (laine de roche + isolation extérieure laine de bois) Cuisine refaite en 2025, radiateurs neufs 2024, menuiseries bois/alu récentes Chauffage bois + électrique Cette maison d'architecte se distingue par sa distribution des pièces optimisée, sa luminosité naturelle et le confort familial qu'elle offre.
Proximité & commodités : Écoles : René Cassin (publique) à 7 min à pied, Saint?Joseph (privée) à 2 min en voiture Commerces & services : boulangerie, alimentation, boucherie à 5 min à pied ; supermarchés à 510 min en voiture Transports : arrêt de bus Aléop à 2 min à pied, Nantes accessible en 20 min en voiture Services administratifs, crèche, périscolaire et loisirs accessibles à quelques minutes
Maison d'architecte alliant design, confort et fonctionnalité, dans un cadre calme mais proche de toutes les commodités. Idéale pour une famille souhaitant espace, luminosité et praticité, avec un terrain offrant un beau potentiel d'extension ou d'aménagement extérieur.
Nos agences immobilières Duret sont joignables par téléphone du lundi au samedi, de 8h00 à 19h00, sans interruption.
MAA
Honoraires inclus de 4% TTC à la charge de l'acquéreur. Prix hors honoraires 410 000 . Classe énergie C, Classe climat A Montant moyen estimé des dépenses annuelles d'énergie pour un usage standard, établi à partir des prix de l'énergie de l'année 2021 : entre 1260.00 et 1760.00 . Les informations sur les risques auxquels ce bien est exposé sont disponibles sur le site Géorisques : georisques.gouv.fr.
Maison traditionnelle
151.41 m²
2 816 €
1164 m²
8
5
2
2 (séparés)
4 %
1999
Sud
2
1
1
Consommations énergétiques
Logement économe
117
Logement énergivore (kWhEP/m2/an)
Émissions de gaz à effet de serre
Faible émission de GES
3
Forte émission de GES(kgeqCO2/m2/an)
Contact
Contacter gratuitement à l'aide du formulaire ci-dessous.