Maison d'architecte atypique 6 pièces sur un terrain de 2000 m2, piscine, 2 garages, vue dominante sur les Cévennes
Arphy 30120
0
EXCLUISIVITE
Vous souhaitez vivre dans un havre de paix, en plein c?ur de la nature, avec une vue imprenable, plein sud, sur les Cévennes, à 10 minutes de toutes commodités, Le Vigan mais aussi à environ 1 h de Montpellier, je vous propose cette maison Située à Arphy dans le département du Gard, cette maison des années 80, tout à fait originale et conviviale, de 130 m2 et ses 4 chambres, saura vous séduire et vous apportez le confort et l'originalité d'habiter un lieu hors du commun, habitable immédiatement, écoles, collège et Lycée, cinéma, hôpital à proximité.
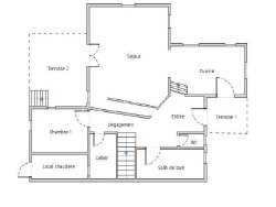
Suivant les plans d'un architecte reconnu dans la région elle se compose :
D'une belle cuisine de qualité équipée ouverte sur le séjour, coin salon avec cheminée, pièce mansardée, 4 chambres, grande salle de bain, wc, cellier.
Grande terrasse couverte vue dégagée, sous-sol, 2 garages (16 et 25 m2).
Terrain en traversiers entièrement aménagé en jardins, superbes murs en pierre, avec accès à la piscine au milieu des arbres, chênes et autres.
Assainissement individuel.
Chauffage bois (poêle Godin) et chaudière fuel mixte eau chaude et chauffage qui fonctionne très bien. Consommation 1500L/an.
Electricité : 80 euros/mois (Maison équipée double vitrage).
Toiture bon état et très bien isolée avec plancher en châtaignier.
Une maison agréable à vivre où vous poserez vos valises.
Cette annonce référence 303568 vous est présentée par votre agent commercial BSK Immobilier NATHALIE BRESSON (EI) immatriculé au RSAC de NIMES (30000) sous le numéro 75221232400020.
Prix du bien : 317 000,00 €
Les honoraires d'agence sont à la charge du vendeur.
A propos des performances énergétiques :
Date de réalisation du diagnostic énergétique : 10/09/2025
Score DPE : 298 kWhEP/m²/an
Score GES : 66 kgepCO2/m²/an
Montant estimé des dépenses annuelles d'énergie pour un usage standard : entre 3770.00 € et 5160.00 € par an. Prix moyens des énergies indexés sur l'année 2023 (abonnements compris).
Les informations sur les risques auxquels ce bien est exposé sont disponibles sur le site Géorisques : www.georisques.gouv.fr
130 m²
2 438 €
2000 m²
6
4
1
1
1980
Sud
Oui
Consommations énergétiques
Logement économe
298
Logement énergivore (kWhEP/m2/an)
Émissions de gaz à effet de serre
Faible émission de GES
66
Forte émission de GES(kgeqCO2/m2/an)
Contact BRESSON NATHALIE
Contacter gratuitement à l'aide du formulaire ci-dessous.