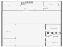
A découvrir, cette maison d'architecte aux volumes généreux et fonctionnels. Elle dispose d'un vaste espace de vie d'environ 65 m² avec accès terrasse et jardin, d'un cellier, de deux chambres dont une suite parentale avec dressing et salle de douche ainsi qu'un bureau. A l'étage, vous trouverez un palier desservant deux chambres avec dressing, une salle de bain avec WC et une buanderie. La maison bénéficie également d'un sous-sol total accessible uniquement depuis l'intérieur, comprenant notamment une salle de cinéma et une salle de sport. Un garage. Elle offre en plus une piscine et un jardin clos et arboré. Un bien rare sur le secteur, idéal pour une famille à la recherche d'espace, de confort et de modernité. Les informations sur les risques auxquels ce bien est exposé sont disponibles sur le site Géorisques : https://www.georisques.gouv.fr" Cette maison vous est proposée par l'agence Prestigia immobilier . Contactez-nous par téléphone ou sur notre site internet www.prestigiaimmobilier.fr