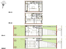
Découvrez cette superbe maison contemporaine de 157 m2 habitables, idéalement située au coeur d'un quartier pavillonnaire recherché de Nogent-sur-Marne Déployée sur 3 niveaux avec des prestations haut de gamme, cette demeure a été pensée pour le confort des familles : Espace Nuit Privilégié : 4 chambres spacieuses, dont une suite parentale de 35 m2, Pièces de Vie Lumineuses : Une architecture moderne optimisant la lumière naturelle sur chaque étage. Extérieurs Privatifs : Profitez d'un jardin à l'avant et à l'arrière de 83m2, ainsi que de 3 terrasses aux étages pour vos moments de détente en plein air. Un garage exceptionnel de 54 m2 en rez-de-chaussée, un atout rare en zone urbaine pour abriter plusieurs véhicules ou créer un atelier/espace de stockage. Accès rapide aux axes routiers et aux RER E & A Isolation thermique et phonique aux dernières normes (économies d'énergie garanties). Contactez-nous pour découvrir les plans détaillés et réserver votre visite de ce bien hors norme. Frais de notaire réduits Pas de frais d'agence Photos non contractuelles
157 m²
6 688 €
5
4
3
3
2
3
Consommations énergétiques
Logement économe
71
Logement énergivore (kWhEP/m2/an)
Émissions de gaz à effet de serre
Faible émission de GES
10
Forte émission de GES(kgeqCO2/m2/an)
Contact AMAR Denis
Contacter gratuitement à l'aide du formulaire ci-dessous.