Maison familiale 109 m² 4 chambres avec jardin et garage à Mornant
Pradines Immobilier vous présente en exclusivité cette belle maison, située à Mornant, au coeur des Monts du Lyonnais. Construite en 2014, elle offre un cadre de vie recherché, alliant calme résidentiel, proximité des commodités et accès facilité aux transports.
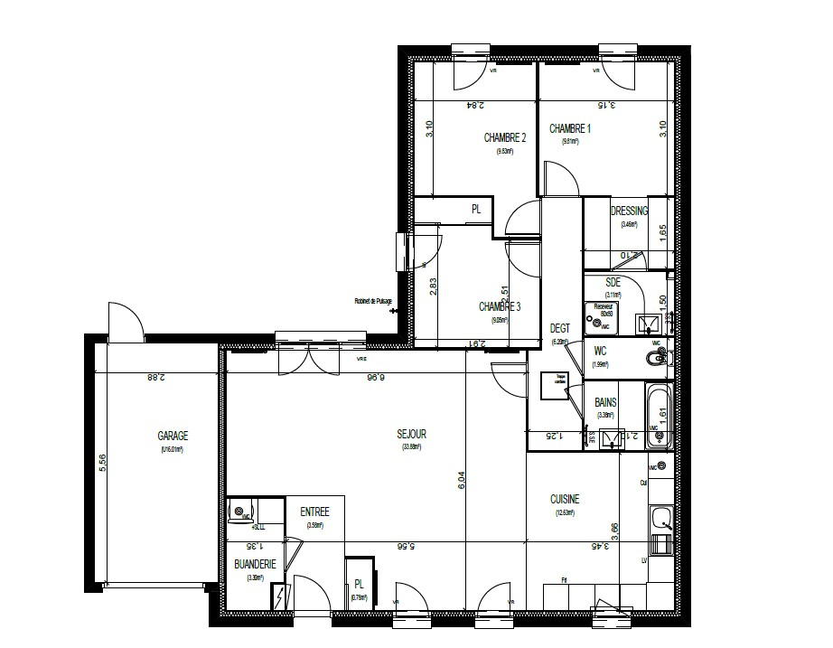
La maison totalise 109 m² habitables avec, au rez de chaussée une pièce de vie traversante de 47 m², baignée de lumière. La cuisine ouverte, aménagée et équipée, prolonge naturellement l'espace séjour et crée un lieu de vie convivial, idéal pour la vie de famille.
A l'étage, l'espace nuit est parfaitement réparti : - 2 suites parentales avec rangements intégrés et salles d'eau privatives - 1 chambre avec rangements intégrés - 1 chambre ou bureau avec rangements intégrés, idéale pour le télétravail - 1 salle d'eau indépendante Ses 3 salles d'eau sont un véritable atout pour une organisation familiale fluide.
À l'extérieur, vous bénéficiez d'une terrasse de 40 m², un jardin arboré, clos et bien entretenu pour profiter pleinement des beaux jours.
Un garage et deux places de stationnement extérieures avec 2 prises de chargement pour véhicules électriques et un portail motorisé complètent les prestations.
Confort et équipements : Climatisation réversible Très bon état général Diagnostic énergétique C Emplacement stratégique à Mornant :À pied, vous accédez facilement aux écoles maternelles, primaires et collèges (Ronsard ou St Thomas d'Aquin), aux commerces de proximité, ainsi qu'aux lignes de bus desservant les communes des Monts du Lyonnais, la gare de Givors ou encore le métro de l'hôpital Lyon Sud.
? Plus qu'une maison, nous vous proposons la vie Mornantaise, idéale pour les familles souhaitant s'installer dans une commune où il fait bon vivre et où les enfants peuvent évoluer et s'épanouir en autonomie et sécurité.
Honoraires à la charge du vendeur. Dans une copropriété de 2 lots. Aucune procédure n'est en cours. Classe énergie C, Classe climat A Montant moyen estimé des dépenses annuelles d'énergie pour un usage standard, établi à partir des prix de l'énergie de l'année 2021 : entre 1360.00 et 1900.00 . Les informations sur les risques auxquels ce bien est exposé sont disponibles sur le site Géorisques : georisques.gouv.fr.