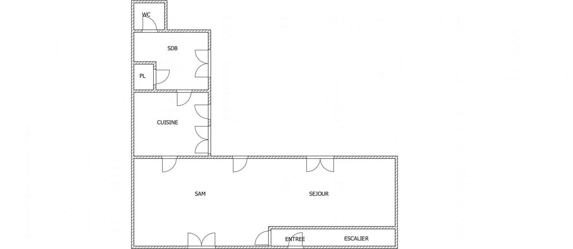
Maison d'habitation à rafraîchir d'environ 119 m² édifié sur une cour.
Au rez-de-chaussée, elle se compose d'un salon, une cuisine aménagée, deux chambres en enfilades, une salle d'eau et un WC.
A l'étage, un palier desservant une chambre.
Une cave, un grenier et une dépendance.
Ecoles et commerces à proximité.
Gare de SOUPPES-SUR-LOING et autoroute à 5 min en voiture.
A VISITER SANS TARDER !!!!
Cette annonce référence 248223 vous est présentée par votre agent commercial BSK Immobilier LAETITIA HOORNAERT (EI) immatriculé au RSAC de MELUN (77000) sous le numéro 89302452100013.
Prix du bien : 112 500,00 €
Les honoraires d'agence sont à la charge du vendeur.
A propos des performances énergétiques :
Date de réalisation du diagnostic énergétique : 25/07/2024
Score DPE : 339 kWhEP/m²/an
Score GES : 66 kgepCO2/m²/an
Montant estimé des dépenses annuelles d'énergie pour un usage standard : entre 3400.00 € et 4650.00 € par an. Prix moyens des énergies indexés sur l'année 2021 (abonnements compris).
Les informations sur les risques auxquels ce bien est exposé sont disponibles sur le site Géorisques : www.georisques.gouv.fr
119 m²
945 €
5
3
1
1
Oui
Oui
Consommations énergétiques
Logement économe
339
Logement énergivore (kWhEP/m2/an)
Émissions de gaz à effet de serre
Faible émission de GES
66
Forte émission de GES(kgeqCO2/m2/an)
Contact Iad France - LAETITIA HOORNAERT
Contacter gratuitement à l'aide du formulaire ci-dessous.