Maison de 140 m2 habitable (187 m2 utile) aux dernieres normes.
Bussy-Saint-Georges 77600
0
Honoraires à la charge du vendeur.
Les charges de location sont prévisionnelles mensuelles avec régularisation annuelle.
Située à Bussy-Saint-Georges (limite Chanteloup-en-Brie) dans un secteur calme, verdoyant et proche de toutes commodités.
Maison refaite à neuf avec les dernières normes de construction, d'isolation, de chauffage et d'équipement.
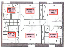
D'une surface de 140 m2 habitable + grenier (180 m2 utile), vous profiterez de grand volume pour chaque pièces
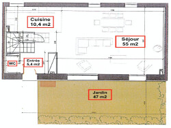
- Séjour avec cuisine ouverte d'environ 65 m2 - Suite parentale d'environs 15 m2 avec salle de bain et WC privatif - Deux chambres de 14 m2 et 12 m2, chacune avec salle d'eau privative - Grand grenier pour stoker ou aménager un espace selon vos envies
Coté équipements et prestations :
- Pompe à chaleur air-air - Isolation renforcé (thermique et phonique) - Fenêtre double et/ou triple vitrage - Volet roulant électrique - Porte d'entrée en alu avec serrure sécurisé 3 points - Robinetterie PORCHER - WC suspendu - Bac à douche 90x120 et ou x100 - Carrelage 60x60 au RDC - Parquet dans les chambres et palier
Coté Avantage :
- Frais de notaire réduit, environs 2,5% (une économie d'environ 28.000 ) - Possibilité de financement par le prêt à 0% - Garantie décennale sur le gros oeuvre - Garantie biennale sur les équipements
Photos non contractuelle (projection 3D)
Honoraires à la charge du vendeur. Dans une copropriété de 6 lots. Aucune procédure n'est en cours. DPE en cours. Les informations sur les risques auxquels ce bien est exposé sont disponibles sur le site Géorisques : georisques.gouv.fr.
Votre conseiller We Invest France : Gael Bernardet Agent commercial (Entreprise individuelle) RSAC 2016AC00139 MEAUX. Les informations sur les risques auxquels ce bien est exposé sont disponibles sur le site Géorisques : www.georisques.gouv.fr
144 m²
3 438 €
55 m²
4
3
1
4
2025
2
1
Oui
Oui (6 lots)
Contact Gael Bernardet
Contacter gratuitement à l'aide du formulaire ci-dessous.