Maison de 140m2 avec 4 chambres sur un terrain de 1453m2
Prunelli-di-Fiumorbo 20243
0
Serena SOLETTI vous propose ce bien :
Maison à vendre de 140m2 avec 4 chambres + garage de 25m2 construit sur un terrain de 1453m2
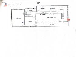
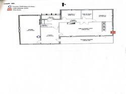
Le bien est composé de la façon suivante:
RDC:
- L'espace de vie présente une belle superficie de 51,53m2 (cuisine séparée mesurant 15,29m2 et salon mesurant 36,24m2). Cet espace est ouvert sur une terrasse couverte exposée plein sud mesurant 19m2. Le rez de chaussé comprend également deux chambres (12,43m2 et 9m2).
R+1:
L'étage se compose d'un coin bureau de presque 25m2 (19m2 en surface carrez), de deux chambres également (13m2 et 10m2) dont une est ouverte sur une terrasse de 10m2.
Les deux étages possèdent leur propre salle d'eau et des wc indépendants.
Le plus de cette maison, est la tranquillité, l'absence de vis à vis, de grands espaces, une partie du terrain reste constructible. Dans le cadre de la rénovation énergétique il existe différentes aides qui pourront être envisagées sous condition de revenus.
Plus de photos disponibles sur demandesnLes informations sur les risques auxquels ce bien est exposé sont disponibles sur le site Géorisques : www.georisques.gouv.fr
140 m²
2 750 €
5
4
2
2
Consommations énergétiques
Logement économe
164
Logement énergivore (kWhEP/m2/an)
Émissions de gaz à effet de serre
Faible émission de GES
5
Forte émission de GES(kgeqCO2/m2/an)
Contact Serena MAURY
Contacter gratuitement à l'aide du formulaire ci-dessous.